Réemploi Musée des Confluences
  • Démontage en cours
    • Le rétroplanning
    • Le catalogue des éléments à récupérer
    • Le formulaire de saisie
  • Pourquoi YesWiki?
Rechercher
  • Se connecter

    Se connecter

    Mot de passe perdu ?

    S'inscrire
  • Documentation
  • Présentation YesWiki
  • Gestion du site
  • Tableau de bord
  • Mes contenus
  • Base de données
Réemploi Musée des Confluences

Démontage avec réemploi des éléments scénographiques des expositions


  • Formulaires
  • Rechercher
  • Saisir
  • Listes
  • Importer
  • Exporter

Afrique 1000 vies d'objets

Afrique 1000 vies d'objets

DATE DU BILAN 18.03.2024
Nombre de formulaires saisis 17
Nombre de récupérateurs 13
Parmi ces récupérateurs, combien sont des musées? 5
Parmi ces récupérateurs, combien sont des associations? 5
Parmi ces récupérateurs, combien sont des écoles? 0
Parmi ces récupérateurs, combien sont des artistes-plasticiens? 1
Parmi ces récupérateurs, combien sont des artistes du spectacle vivant? 2
Parmi ces récupérateurs, combien sont des entreprises ou des artisans? 0
Parmi ces récupérateurs, combien sont des particuliers? 0
Parmi ces récupérateurs, combien sont localisés dans la métropole du Grand Lyon? 5
Parmi ces récupérateurs, combien sont localisés dans le département du Rhône? 5
Parmi ces récupérateurs, combien sont localisés dans d'autres départements de la région? 3
BOIS / REEMPLOI : Poids en kg 9504
BOIS / RECYCLAGE : Poids en kg 4920
METAL / REEMPLOI : Poids en kg 269
METAL / RECYCLAGE : Poids en kg 0
TEXTILE / REEMPLOI : Poids en kg 0
TEXTILE / RECYCLAGE : Poids en kg 0
VERRE / REEMPLOI : Poids en kg 553
VERRE / RECYCLAGE : Poids en kg 0
PLASTIQUE / REEMPLOI : Poids en kg 920
PLASTIQUE / RECYCLAGE : Poids en kg 0
AUTRE / REEMPLOI : Poids en kg 0
AUTRE / RECYCLAGE : Poids en kg 0
BILAN : POIDS TOTAL EN KG 16166
BILAN : POIDS TOTAL EN REEMPLOI EN KG 11246
BILAN : POIDS TOTAL EN RECYCLAGE EN KG 4920
BILAN : TAUX DE REEMPLOI EN POURCENTAGE 70
PDF Voir la fiche

dimension +

dimension +

TYPE DE STRUCTURE Association
NOM ET PRENOM DU CONTACT POUR LES ECHANGES (avant la livraison ou l'enlèvement) jean-marc Benas
LISTE DES ELEMENTS SOUHAITES
  • ID 15 : Pontons
  • ID 27 : Châssis métallique
Avez-vous une utilisation future prévue pour les éléments demandés ? Si oui laquelle ? Oui, notre association essaye de produire un festival de marionnette avec des professionnels et des enfants
nous avons besoin de structures pour faire des podiums

Liste des éléments attribués

COMMENTAIRES en vous remerciant par avance
PDF Voir la fiche

Epidémies, prendre soin du vivant

Epidémies, prendre soin du vivant

DATE DU BILAN 10.03.2025
Nombre de formulaires saisis 14
Nombre de récupérateurs 10
Parmi ces récupérateurs, combien sont des musées? 3
Parmi ces récupérateurs, combien sont des associations? 4
Parmi ces récupérateurs, combien sont des écoles? 1
Parmi ces récupérateurs, combien sont des artistes-plasticiens? 1
Parmi ces récupérateurs, combien sont des artistes du spectacle vivant? 1
Parmi ces récupérateurs, combien sont des entreprises ou des artisans? 0
Parmi ces récupérateurs, combien sont des particuliers? 0
Parmi ces récupérateurs, combien y-a-t-il de désistements de dernière minute? 1
Parmi ces récupérateurs, combien sont localisés dans la métropole du Grand Lyon? 4
Parmi ces récupérateurs, combien sont localisés dans le département du Rhône? 1
Parmi ces récupérateurs, combien sont localisés dans d'autres départements de la région? 5
BOIS / REEMPLOI : Poids en kg 8465
BOIS / RECYCLAGE : Poids en kg 3040
METAL / REEMPLOI : Poids en kg 0
METAL / RECYCLAGE : Poids en kg 0
TEXTILE / REEMPLOI : Poids en kg 0
TEXTILE / RECYCLAGE : Poids en kg 0
VERRE / REEMPLOI : Poids en kg 0
VERRE / RECYCLAGE : Poids en kg 0
PLASTIQUE / REEMPLOI : Poids en kg 0
PLASTIQUE / RECYCLAGE : Poids en kg 0
AUTRE / REEMPLOI : Poids en kg 0
AUTRE / RECYCLAGE : Poids en kg 0
BILAN : POIDS TOTAL EN KG 11505
BILAN : POIDS TOTAL EN REEMPLOI EN KG 8465
BILAN : POIDS TOTAL EN RECYCLAGE EN KG 3040
BILAN : TAUX DE REEMPLOI EN POURCENTAGE 74
PDF Voir la fiche

Espace de vie sociale Les 4 Versants

Espace de vie sociale Les 4 Versants

TYPE DE STRUCTURE Association
SITE INTERNET https://les4versants.fr/
NOM ET PRENOM DU CONTACT POUR LES ECHANGES (avant la livraison ou l'enlèvement) PONTET Romane
LISTE DES ELEMENTS SOUHAITES
  • ID10 : Tôles ondulées
  • ID17 : Ecrans de projection
  • ID18 : Plaques MDF
  • ID21 : Montants MDF en U
Avez-vous une utilisation future prévue pour les éléments demandés ? Si oui laquelle ? Les bénévoles souhaitent construire une cabane à dons avec les tôles. Les plaques et montants MDF leur seront utiles pour les ateliers intergénérationnels qu'ils proposent aux familles : fabrication de jouets en bois, puzzles géants, théâtres de marionnettes, etc. Les écrans de projection pourront servir aux animatrices de la structure, pour des activités autour du numérique, avec des jeunes. Ils permettront aussi de promouvoir les activités de la structure lors d'évènements.
PDF Voir la fiche

Espace de vie sociale Les 4 versants ( La Récup')

Espace de vie sociale Les 4 versants ( La Récup')

TYPE DE STRUCTURE Association
SITE INTERNET https://les4versants.fr/
NOM ET PRENOM DU CONTACT POUR LES ECHANGES (avant la livraison ou l'enlèvement) Rosiak Pascal
LISTE DES ELEMENTS SOUHAITES
  • ID28 : Planches en U en sapin 286
  • ID29 : Planches en U en sapin 260
Avez-vous une utilisation future prévue pour les éléments demandés ? Si oui laquelle ? Nous voulons construire une cabane à dons sur Pélussin ,qui s'appellera "Le Cabadon" ..... et donc nous avons de planches
PDF Voir la fiche

Fleuves

Fleuves

DATE DU BILAN 06.10.2023
Nombre de formulaires saisis 14
Nombre de récupérateurs 8
Parmi ces récupérateurs, combien sont des musées? 3
Parmi ces récupérateurs, combien sont des associations? 3
Parmi ces récupérateurs, combien sont des écoles? 1
Parmi ces récupérateurs, combien sont des artistes-plasticiens? 0
Parmi ces récupérateurs, combien sont des artistes du spectacle vivant? 1
Parmi ces récupérateurs, combien sont des entreprises ou des artisans? 0
Parmi ces récupérateurs, combien sont des particuliers? 0
Parmi ces récupérateurs, combien sont localisés dans la métropole du Grand Lyon? 4
Parmi ces récupérateurs, combien sont localisés dans le département du Rhône? 1
Parmi ces récupérateurs, combien sont localisés dans d'autres départements de la région? 3
BOIS / REEMPLOI : Poids en kg 2977
BOIS / RECYCLAGE : Poids en kg 4760
METAL / REEMPLOI : Poids en kg 422
METAL / RECYCLAGE : Poids en kg 0
TEXTILE / REEMPLOI : Poids en kg 0
TEXTILE / RECYCLAGE : Poids en kg 0
VERRE / REEMPLOI : Poids en kg 1575
VERRE / RECYCLAGE : Poids en kg 0
PLASTIQUE / REEMPLOI : Poids en kg 0
PLASTIQUE / RECYCLAGE : Poids en kg 20
AUTRE / REEMPLOI : Poids en kg 0
AUTRE / RECYCLAGE : Poids en kg 0
BILAN : POIDS TOTAL EN KG 9804
BILAN : POIDS TOTAL EN REEMPLOI EN KG 4974
BILAN : POIDS TOTAL EN RECYCLAGE EN KG 4760
BILAN : TAUX DE REEMPLOI EN POURCENTAGE 51
PDF Voir la fiche

Formation

Formation

Description courte Formation à la méthodologie de réemploi avec Yeswiki
Nom de la personne référente du wiki Hélène Causse
Accéder au site : https://reemploi.fixart.fr/formation
Je donne mon accord pour que ces données soient collectées oui
PDF Voir la fiche

Framasoft

Framasoft

Site web https://framasoft.org/fr/
Type de ressource
  • Partenaire ressource
Description Framasoft, c’est une association d’éducation populaire, un groupe d’ami·es convaincu·es qu’un monde numérique émancipateur est possible, persuadé·es qu’il adviendra grâce à des actions concrètes sur le terrain et en ligne avec vous et pour vous !
PDF Voir la fiche

ID 01 : V 2.4 (noir)

ID 01 : V 2.4 (noir)

vitrine_v24.jpg
Catégorie Vitrine objets
Matériaux
  • Bois
  • Métal
  • Verre
Précisions matière, finitions MDF / Verre securit 10 mm / Acier laqué blanc
Description Une ossature métallique en acier blanc laqué réutilisable composée d'une base avec des pieds réglables, 6 plaques de verre 236.5 x 114 x 1 cm, 8 parecloses entre chaque verre et des habillages en medium peint en noir sur les faces.
Quantité 1
Les éléments peuvent être demandés à l'unité ? non, un seul lot
Hauteur en cm 300
Longueur en cm 368
Largeur en cm 72
vitrine_v24_vuedessus.jpg vitrine_v24_detail01.JPG
Etat Bon
PDF Voir la fiche

ID 02 : Vitrines carnet (blanc)

ID 02 : Vitrines carnet (blanc)

vitrine_collection_blanc01.JPG
Catégorie Vitrine objets
Matériaux
  • Bois
  • Métal
  • Verre
Précisions matière, finitions MDF / Verre securit 10 mm / Acier laqué blanc
Description Une vitrine démontable composée d'une ossature haute et basse en acier laqué blanc avec des montants en acier laqué blanc et 10 plaques de verre 236.5 x 114 x 1 cm. Les joues sont des caissons en medium peints en blanc. Les pieds sont réglables avec des vérins. Il manque 3 verres mais qui peuvent être remplacés par des plaques de fond en medium de 10 mm. Même modèle que l'ID 01 mais sans les habillages
Quantité 3
Les éléments peuvent être demandés à l'unité ? non, un seul lot
Hauteur en cm 252
Longueur en cm 230
Largeur en cm 72
vitrine_collection_blanc02.JPG
Etat Bon
PDF Voir la fiche

ID 03 : Vitrine carnets (blanc)

ID 03 : Vitrine carnets (blanc)

vitrine_collection_blanc01.JPG
Catégorie Vitrine objets
Matériaux
  • Bois
  • Métal
  • Verre
Précisions matière, finitions MDF / Verre securit 10 mm / Acier laqué blanc
Description Même vitrine que l'ID 02
Quantité 1
Les éléments peuvent être demandés à l'unité ? non, un seul lot
Hauteur en cm 252
Longueur en cm 118
Largeur en cm 72
vitrine_collection_blanc02.JPG
Etat Bon
PDF Voir la fiche

ID 04 : Sièges de cinéma

ID 04 : Sièges de cinéma

bancs_cinema.JPG
Catégorie Mobilier
Matériaux
  • Bois
  • Métal
Précisions matière, finitions MDF / Acier laqué noir
Description Sièges de cinéma en medium peint en 2 parties. Des platines en acier permettent la fixation au sol. Les sièges ne sont pas rembourrés. Il n'y a pas de coussins. Espace disponible pour un fauteil roulant. Détérioration du medium à la jonction entre les deux ensembles par des lamelles.
Quantité 1
Les éléments peuvent être demandés à l'unité ? non, un seul lot
Hauteur en cm 90
Longueur en cm 605
Largeur en cm 61
bancs_cinema_details.JPG bancs_cinema_details02.JPG bancs_cinema_details03.JPG
Etat Moyen
Détail état Quelques réparations à effectuer à la jonction des 2 parties.
PDF Voir la fiche

ID 04 : Vitrines simples

ID 04 : Vitrines simples

vitrinesimple.JPG
Catégorie Vitrine objets
Matériaux
  • Bois
  • Verre
  • Plastique
Précisions matière, finitions Contreplaqué / Plexiglas / Verre
Description Chaque vitrine est composée d'une base avec 4 rondins de 8 cm de diamètre reliés entre eux par des bandes de contreplaqué de 4 cm de large. Le plateau imite des lames de terrasse en bois. En réalité, une plaque de contreplaqué a été défoncée et ensuite vernie. Sur la face, le cartel est en plastique et, grâce à un tasseau sous le plateau, peut être facilement enlevé. La cloche en verre et le socle ne font pas partie de l'opération. La plaque verticale en verre quant à elle fait 110 cm de haut pour 60 cm de large. Son épaisseur est de 8 mm. Les 3 vitrines sont identiques.

Attention La vitrine "Sables fluviatiles" est la seule à avoir son plateau percé par 10 trous de 6 cm de diamètre.
Quantité 3
Les éléments peuvent être demandés à l'unité ? oui, possible de demander à l'unité
Hauteur en cm 87
Longueur en cm 151
Largeur en cm 60
vitrinesimple02.JPG vitrinesimple03.JPG vitrinesimpledetail.JPG
Etat Bon
PDF Voir la fiche

ID 05 : Plancher valchromat

ID 05 : Plancher valchromat

plancher_valchromat.jpg
Catégorie Aménagement divers
Matériaux
  • Bois
Précisions matière, finitions MDF valchromat gris
Description Ensemble composé d'un plancher en valchromat gris de 19 mm d'épaisseur et d'une cloison en valchromat avec une ossature. Cet espace servait d'introduction à l'exposition "Afrique en couleurs".
Quantité 1
Les éléments peuvent être demandés à l'unité ? non, un seul lot
Hauteur en cm 350
Longueur en cm 335
Largeur en cm 315
Épaisseur en mm 19
plancher_valchromat_plangeneral.jpg plancher_valchromat_vuedessus.jpg plancher_valchromat_detail01.jpg
Etat Bon
PDF Voir la fiche

ID 06 : Terrasses

ID 06 : Terrasses

terrasse.JPG
Catégorie Podium / Estrade
Matériaux
  • Bois
Précisions matière, finitions Contreplaqué 22 mm vernis
Description Ce sont de grands podiums en plusieurs parties avec un plateau en contreplaqué rainuré/vernis pour imiter une terrasse en bois et un piètement avec des poteaux en pin de 8 cm de diamètre reliés entre eux par des bandes de contreplaqué de 4 cm de large avec des boulons.

  • Terrasse "Fleuves nourriciers" : Longueur 300 x largeur 200 x hauteur 60 cm en 2 parties
  • Terrasse "Eau potable" : Longueur 400 x largeur 300 x hauteur 60 cm en 4 parties
  • Terrasse "Cours d'eau" : Longueur 360 x largeur 195 x hauteur de 70 cm
  • Terrasse "Barque de la mort" : Longueur 489 x largeur 245 x hauteur de 30 cm en 3 parties

Les cartels sont collés directement sur le dessus des terrasses et ne seront pas enlevés au démontage. Par contre, le cartel de la terrasse "Cours d'eau" est lui démontable grâce à un tasseau vissé sous le plateau.

Les éléments de soclage (tiges métalliques) sont récupérés par le musée ainsi que toutes les cloches en verre. Seul le mobilier est à récupérer.

Attention Précisez dans l'encadré "Commentaires" à la fin du formulaire la ou les terrasses qui vous intéressent.
Quantité 4
Les éléments peuvent être demandés à l'unité ? oui, possible de demander à l'unité
Hauteur en cm 60
Longueur en cm 300
Largeur en cm 200
terrasse_fleuvesnourriciers.JPG terrasse_coursdeau.JPG terrasse_barquedelamort.JPG
Etat Bon
PDF Voir la fiche

ID 06 : V 1.2

ID 06 : V 1.2

vitrine_v12.jpg
Catégorie Vitrine objets
Matériaux
  • Bois
  • Verre
Précisions matière, finitions MDF peint / Verre securit 6 mm
Description Vitrine verticale sous la forme d'un totem en 3 parties (soubassement/verres/plafonnier). La vitrine est fournie avec 1 plaque de verre de 115 x 60,7 x 0,6 cm et une autre de 115 x 84,5 x 0,6 cm.
Quantité 1
Les éléments peuvent être demandés à l'unité ? non, un seul lot
Hauteur en cm 350
Longueur en cm 100
Largeur en cm 77
vitrine_v12_vuedessus.jpg vitrine_v12_detail01.jpg
Etat Bon
Détail état Prête à être remontée
PDF Voir la fiche

ID 07 : Podium P 2.1

ID 07 : Podium P 2.1

podium_p21_vuedessus.jpg
Catégorie Podium / Estrade
Matériaux
  • Bois
Précisions matière, finitions MDF
Description Podium en medium en 3 parties. Attention l'une des parties est rognée pour l'implantation d'une vitrine qui ne fait pas partie de l'opération.
Quantité 1
Les éléments peuvent être demandés à l'unité ? non, un seul lot
Hauteur en cm 60
Longueur en cm 300
Largeur en cm 150
podium_p21_vueface.jpg podium_p21_detail01.jpg podium_p21_detail02.jpg
Etat Bon
Détail état Prêt à être remonté
PDF Voir la fiche

ID 08 : Matériauthèque V 2.1

ID 08 : Matériauthèque V 2.1

materiautheque.jpg
Catégorie Mobilier
Matériaux
  • Bois
  • Verre
Précisions matière, finitions MDF peint / Verre securit 6 mm
Description Mobilier d'exposition composé d'une cloison en medium de 25 cm d'épaisseur avec 2 plaques de verre (190 x 33 x 0,6 cm et 230 x 23 x 0,6 cm) pour la présentation d'objets et d'une table avec une plaque de verre de 81 x 55 x 0,6 cm pour des échantillons ainsi qu'un habillage pour un écran.
Quantité 1
Les éléments peuvent être demandés à l'unité ? non, un seul lot
Hauteur en cm 252
Longueur en cm 350
Largeur en cm 100
materiautheque_vuedessus.jpg materiautheque_detail01.jpg
Etat Bon
PDF Voir la fiche

ID 09 : Grande vitrine

ID 09 : Grande vitrine

grandevitrine.jpg
Catégorie Vitrine objets
Matériaux
  • Bois
  • Verre
Précisions matière, finitions MDF / Verre feuilleté 10 mm
Description Grande vitrine d'environ 8 mètres de long composée d'une ossature en medium pour le fond de vitrine, d'un plancher en médium de 19 mm et de 7 plaques de verre en façade. Un habillage en médium peint en noir encadre le pourtour de la face vitrée. Les joues de la vitrine à gauche et à droite sont aussi en médium avec des tasseaux.
Quantité 1
Les éléments peuvent être demandés à l'unité ? non, un seul lot
Hauteur en cm 350
Longueur en cm 790
Largeur en cm 115
grandevitrine_vuedessus.jpg
Etat Bon
PDF Voir la fiche

ID 09 : Signalétique

ID 09 : Signalétique

signaletique.JPG
Catégorie Signalétique
Matériaux
  • Bois
  • Plastique
Précisions matière, finitions Pin / Plexiglas / MDF valchromat
Description 16 poteaux d'un diamètre de 8 cm en pin sur une base circulaire en medium valchromat gris avec une plaque en plexiglas de 6 mm d'épaisseur.

Différentes formes :
  • 3 carrés de 39 x 39 cm
  • 7 losanges de 37,5 x 37,5 cm de côté
  • 2 ronds de 40 cm de diamètre
  • 2 triangles isocèles de 58 cm de côté
  • 2 ovales d'une longueur de 53 cm
Quantité 16
Les éléments peuvent être demandés à l'unité ? non, un seul lot
Hauteur en cm 175
Largeur en cm 90
Épaisseur en mm 30
signaletique_detail01.JPG signaletique_detail02.JPG signaletique_detail03.JPG
Etat Bon
PDF Voir la fiche

ID 10 : Vitrine 3.5

ID 10 : Vitrine 3.5

vitrine_v35.jpg
Catégorie Mobilier
Matériaux
  • Bois
Précisions matière, finitions MDF
Description Mobilier en medium peint en gris foncé. L'écran et son habillage ne sont pas inclus. Le musée ne dispose pas d'autres plans.
Quantité 1
Les éléments peuvent être demandés à l'unité ? non, un seul lot
Hauteur en cm 33
Longueur en cm 195
Largeur en cm 150
vitrine_v35_detail01.jpg
Etat Bon
PDF Voir la fiche

ID 11 : Podium P 4.1

ID 11 : Podium P 4.1

podium_p41_vuedessus.jpg
Catégorie Podium / Estrade
Matériaux
  • Bois
  • Métal
Précisions matière, finitions MDF / Tôle ondulée
Description Podium de forme ovale en 4 parties avec une ossature en medium et un habillage en tôle ondulée peinte en jaune. Les tôles peuvent être démontées. Un medium cintré entoure le podium. Présence de pieds réglables.
Quantité 1
Les éléments peuvent être demandés à l'unité ? non, un seul lot
Hauteur en cm 63
Longueur en cm 580
Largeur en cm 180
podium_p41_vueface.jpg podium_p41_details.jpg
Etat Bon
PDF Voir la fiche

ID 12 : Plaque de verre

ID 12 : Plaque de verre

plaquesdeverre_AFR.JPG
Catégorie Plaque de verre
Matériaux
  • Verre
Précisions matière, finitions MDF / Verre feuilleté 6 mm
Description Une plaque de verre.
Quantité 1
Les éléments peuvent être demandés à l'unité ? non, un seul lot
Longueur en cm 202
Largeur en cm 112
Épaisseur en mm 6
Etat Bon
PDF Voir la fiche

ID 15 : Pontons

ID 15 : Pontons

pontons.JPG
Catégorie Podium / Estrade
Matériaux
  • Bois
Précisions matière, finitions Poteaux en pin / Plancher en contreplaqué
Description Mise à distance sous la forme d'un ponton en bois avec des poteaux d'un diamètre de 8 cm et d'un plancher en contreplaqué imitation terrasse. Le ponton se démonte en 7 parties d'environ chacune 2 ml. Des cartels en plexiglas sont directement collés sur le bois et ne seront pas démontés pour éviter des détériorations.
Quantité 1
Les éléments peuvent être demandés à l'unité ? non, un seul lot
Hauteur en cm 30
Longueur en cm 1200
Largeur en cm 90
pontons_detail01.JPG pontons_detail02.JPG
Etat Bon
PDF Voir la fiche

ID 18 : Verres vitrines

ID 18 : Verres vitrines

vitrineC.JPG
Catégorie Plaque de verre
Matériaux
  • Verre
Précisions matière, finitions Verre securit 8 mm
Description 14 plaques de verre :
  • 2 plaques de verre (Hauteur environ 150 cm x Largeur 118 cm / Vitrine castor)
  • 4 plaques de verre (Hauteur environ 150 cm x Largeur 148 cm / Vitrine castor)
  • 8 plaque de verre (Hauteur environ 122 cm x Largeur 127 cm / Vitrine bateaux)
Quantité 14
Les éléments peuvent être demandés à l'unité ? oui, possible de demander à l'unité
plaquesdeverre_Vbateaux.JPG
Etat Bon
PDF Voir la fiche

ID 20 : Poteaux bois

ID 20 : Poteaux bois

poteaux.JPG
Catégorie Décor
Matériaux
  • Bois
Précisions matière, finitions Pin
Description Poteaux en pin d'un diamètre de 8 cm et de longueur variable :
  • 10 poteaux de 105 cm (vitrine théâtre)
  • 6 poteaux de 70 cm (table Bassins versants)
  • 6 poteaux de 65 cm (table écran Confluence)
Quantité 22
Les éléments peuvent être demandés à l'unité ? non, un seul lot
Etat Bon
PDF Voir la fiche

ID 21 : Bandes CP

ID 21 : Bandes CP

poteaux_bandesCP.JPG
Catégorie Plaque de bois
Matériaux
  • Bois
Précisions matière, finitions Contreplaqué 22 mm vernis
Description Bandes en contreplaqué de 22 mm boulonnées à chaque extrémité (trous) :
  • 8 bandes de 155 cm (largeur 40 mm / Vitrine théâtre)
  • 10 bandes de 110 cm (largeur 40 mm / Vitrine théâtre)
  • 8 bandes de 123 cm (largeur 60 mm / Table Bassins versants)
  • 8 bandes de 102 cm (largeur 60 mm / Table écran Confluence)
  • 28 bandes de 170 cm (largeur 60 mm / Vitrine C)
Possibilité de fournir l'ensemble des boulons/écrous qui ont servi à la fixation de ces bandes entre elles.
Quantité 62
Les éléments peuvent être demandés à l'unité ? non, un seul lot
bandesCP_pietement.JPG
Etat Bon
PDF Voir la fiche

ID 23 : Vitrines 4 faces verre

ID 23 : Vitrines 4 faces verre

vitrines_4faces.JPG
Catégorie Vitrine objets
Matériaux
  • Bois
  • Verre
Précisions matière, finitions Contreplaqué 22 mm vernis / Verre securit 8 mm / MDF peint en blanc / Poteaux en pin
Description Cette vitrine d'exposition est composée d'un plafonnier en medium posé sur 10 plaques de verre qui sont elles-mêmes encastrées dans une base en contreplaqué. Le piètement de la vitrine est constitué de poteaux en bois de 8 cm de diamètre reliés entre eux par des bandes de contreplaqué de 6 cm de large. Les éclairages sont récupérés par le Musée des Confluences :
  • ID 23A Vitrine "Créatures aquatiques" (Hauteur 212 cm x Longueur 330 cm x Largeur 108.5 cm)
  • ID 23B Vitrine "Vivre avec les dangers du fleuve" (Hauteur 212 cm x Longueur 368 cm x Largeur 113.5 cm)
  • ID 23C Vitrine "Harpes" (Hauteur 212 cm x Longueur 335 cm x Largeur 104 cm)

Veuillez préciser dans les commentaires la ou les vitrines que vous souhaitez.
Quantité 3
Les éléments peuvent être demandés à l'unité ? oui, possible de demander à l'unité
Hauteur en cm 212
Longueur en cm 330
Largeur en cm 110
vitrines_4faces_dangers.JPG vitrines_4faces_harpes.JPG
Etat Bon
PDF Voir la fiche

ID 25 : Vitrine Dieux des eaux

ID 25 : Vitrine Dieux des eaux

vitrine_dieuxdeseaux.JPG
Catégorie Vitrine objets
Matériaux
  • Bois
  • Verre
Précisions matière, finitions MDF peint / Verre securit 6 mm
Description Vitrine d'exposition de qualité musée pour la présentation de collection d'objets fragiles nécessitant un contrôle hygrométrique. Plutôt destinée à de l'exposition permanente. La vitrine est en medium, peint en noir. Une trappe d'accès sur le côté en partie basse permet d'accéder à l'intérieur de la vitrine pour l'installation d'un système de contrôle ou de régulation de l'hygrométrie. La plaque de verre sur la face coulisse en guillotine pour fermer la vitrine. Le système d'éclairage est intégré à la vitrine. La vitrine n'est pas démontable et doit peser environ 100 kg. Le piètement dans l'esprit de l'exposition avec des poteaux en pin fait 26 cm de haut. L'espace disponible est de 110 cm de large, 105 cm de haut et environ 75 cm de profondeur.
Quantité 1
Les éléments peuvent être demandés à l'unité ? non, un seul lot
Hauteur en cm 217
Longueur en cm 95
Largeur en cm 150
vitrine_dieuxdeseaux_trappe.JPG vitrine_dieuxdeseaux_eclairage.JPG
Etat Bon
PDF Voir la fiche

ID 26 : Vitrine hermétique

ID 26 : Vitrine hermétique

vitrinehermetique.JPG
Catégorie Vitrine objets
Matériaux
  • Bois
  • Métal
  • Verre
Précisions matière, finitions Medium peint / Verre / Acier laqué
Description Vitrine d'exposition de qualité musée pour la présentation de collection d'objets fragiles nécessitant une vitrine hermétique. La plaque de verre est posée dans une feuillure avec un joint périphérique d'étanchéité et une sécurisation avec des parecloses en acier laqué noir. Cette vitrine est plutôt destinée à de l'exposition permanente. Le piètement est dans l'esprit de l'exposition avec des poteaux en pin et fait 26 cm de haut. L'espace disponible est d'environ 15 cm de haut. Elle n'est pas démontable et pèse environ 90 kg.
Quantité 1
Les éléments peuvent être demandés à l'unité ? non, un seul lot
Hauteur en cm 70
Longueur en cm 260
Largeur en cm 110
vitrinehermetique_pareclose.JPG vitrinehermetique_verre.JPG
Etat Bon
PDF Voir la fiche

ID 27 : Châssis métallique

ID 27 : Châssis métallique

chassismetallique_Vbateaux.JPG
Catégorie Châssis
Matériaux
  • Métal
Précisions matière, finitions Acier laqué noir
Description Un châssis soudé en acier laqué noir en 2 parties avec ses 10 pieds métalliques noirs de forme circulaire qui a servi de support à une grande vitrine d'exposition.
Quantité 1
Les éléments peuvent être demandés à l'unité ? non, un seul lot
Hauteur en cm 70
Longueur en cm 500
Largeur en cm 190
chassismetallique_Vbateaux_pieds.JPG chassismetallique_Vbateaux_detail.JPG
Etat Bon
Détail état Les pieds boulonnés ont aussi été soudés sur place et nous allons être contraints de meuler les points de soudure de sécurité.
PDF Voir la fiche

ID01 : Blocs couleurs

ID01 : Blocs couleurs

Blocscouleurs.JPG
Catégorie Socle
Matériaux
  • Bois
Précisions matière, finitions MDF peint
Description Socle en medium peint avec un visuel collé sur le dessus.
Quantité 6
Les éléments peuvent être demandés à l'unité ? non, un seul lot
Hauteur en cm 76
Longueur en cm 50
Largeur en cm 40
BlocscouleursA.JPG BlocscouleursB.JPG BlocscouleursC.JPG BlocscouleursD.JPG
Etat Bon
Commentaire Précision sur les couleurs :
  • 1 rouge
  • 2 jaune
  • 1 blanc
  • 1 gris
  • 1 vert
PDF Voir la fiche

ID01 : Disque

ID01 : Disque

Disquenoir.JPG
Catégorie Décor
Matériaux
  • Bois
Précisions matière, finitions MDF
Description Elément de décor en medium peint en noir de forme circulaire avec une ossature en medium de 10 cm de large. Le disque est en 4 parties.
Quantité 1
Les éléments peuvent être demandés à l'unité ? non, un seul lot
Hauteur en cm 12
Longueur en cm 300
Largeur en cm 300
Disquenoir_plan3D.JPG Disque_plan3Dbis.png
Etat Bon
PDF Voir la fiche

ID01 : Verres Vitrine archéologie

ID01 : Verres Vitrine archéologie

vitrine_archeo_Verre.JPG
Catégorie Plaque de verre
Matériaux
  • Verre
Précisions matière, finitions Verre 44.2 Extra clair
Description Plaques de verre 44.2 Extra clair d'une épaisseur de 10 mm
  • ID01 A Dimensions : Hauteur 151 cm xLongueur 199,7 cm / Qté 2
  • ID01 B Dimensions : Hauteur 151 cm x Longueur 100 cm / Qté 4


Attention à la manutention des plaques de verre (poids important). Il est conseillé d'être équipé de ventouses.
Certains verres ont des revêtements adhésifs qui nécessiteront un nettoyage (nous contacter si besoin de conseil)
Quantité 6
Les éléments peuvent être demandés à l'unité ? oui, possible de demander à l'unité
Hauteur en cm 151
Épaisseur en mm 10
Etat Bon
Détail ou autre image
DSC08848.JPG
Plan
plan_vitrine_archo.jpg
PDF Voir la fiche

ID02 : Blocs marron

ID02 : Blocs marron

Blocsmarron.JPG
Catégorie Socle
Matériaux
  • Bois
Précisions matière, finitions MDF valchromat marron vernis
Description Assises et socles en medium marron avec une plinthe peinte en noir en léger retrait.
Bloc marron A : longueur = 120 cm, largeur = 80 cm, hauteur = 46 cm
Bloc marron B : longueur = 190 cm, largeur = 80 cm, hauteur = 46 cm
Bloc marron C : longueur = 120 cm, largeur = 80 cm, hauteur = 46 cm
Bloc marron D : longueur = 155 cm, largeur = 80 cm, hauteur = 46 cm
Bloc marron E : longueur = 80 cm, largeur = 80 cm, hauteur = 46 cm
Bloc marron F : longueur = 120 cm, largeur = 80 cm, hauteur = 46 cm
Bloc marron G : longueur = 130 cm, largeur = 80 cm, hauteur = 46 cm
Quantité 7
Les éléments peuvent être demandés à l'unité ? oui, possible de demander à l'unité
Hauteur en cm 46
Longueur en cm 120
Largeur en cm 80
Blocsmarron_detail.JPG BlocsmarronA.JPG BlocsmarronB.JPG BlocsmarronC.JPG BlocsmarronD.JPG BlocsmarronE.JPG BlocsmarronF.JPG
Etat Bon
PDF Voir la fiche

ID02 : Estrade néolithique

ID02 : Estrade néolithique

EstradeNeolithique.JPG
Catégorie Plaque de bois
Matériaux
  • Bois
Précisions matière, finitions Aggloméré 19 mm stratifié Tarrazzo Bronze
Description L'estrade va être entièrement démontée et des lots bois seront constitués (ID02 et ID03).
Les plaques en aggloméré stratifié Pfleiderer Tarrazzo bronze (environ 2 palettes 120 x 80 cm) présentent plusieurs formats et très variés (environ une vingtaine de plaques). La surface du panneau est moucheté d'un effet doré qui a été ajouté dans un second temps. Les adhésifs quant à eux s'enlèvent facilement (type lettres adhésives) mais des traces dues à la lumière seront sans doute visibles.
Quantité 2
Les éléments peuvent être demandés à l'unité ? non, un seul lot
Hauteur en cm 60
Longueur en cm 120
Largeur en cm 80
Épaisseur en mm 19
EstradeNeolithique_detail01.JPG EstradeNeolithique_detail02.JPG EstradeNeolithique_detail03.JPG EstradeNeolithique_plan.JPG
Etat Bon
Détail état Traces d'adhésifs
PDF Voir la fiche

ID02 : Parements et ossature - Vitrine archéologique

ID02 : Parements et ossature - Vitrine archéologique

vitrine_archeo_parement.JPG
Catégorie Plaque de bois
Matériaux
  • Bois
Précisions matière, finitions MDF 19 mm M3 peint + bois ossature
Description Parements en MDF d'une grande vitrine dans la salle 12 du musée.

PLAQUES DE MEDIUM PEINT (épaisseur 19 cm) :

ID02 A Dimensions : Longueur 349 cm x largeur 135 cm / qté 4
ID02 B Dimensions : Longueur 124 cm x largeur 100 cm / qté 4
ID02 C Dimensions : Longueur 75 cm x largeur 100 cm / qté 4
ID02 D Dimensions : Longueur 124 cm x largeur 200 cm / qté 2
ID02 E Dimensions : Longueur 200 cm x largeur 75 cm / qté 2
ID02 F Dimensions : Longueur 349 cm x largeur 35 cm / qté 2
ID02 G Dimensions : Longueur 349 cm x largeur 14 cm / qté 2
ID02 H Dimensions : Longueur 151 cm x largeur 83,1 cm / qté 4
ID02 I Ossature bois en aggloméré 19 mm M3 brut Dimensions : Hauteur 349 cm x Longueur 670 cm x Profondeur 140 cm

Les plaques seront reconditionnées et recoupées si nécessaire pour être palettisées afin de servir de matériau de réemploi (sauf si le projet nécessite un remontage de la vitrine intégralement - dans ce cas le préciser)
Quantité 25
Les éléments peuvent être demandés à l'unité ? oui, possible de demander à l'unité
Etat Bon
Détail état Présence de trous de vis, il est possible que les plaques soient un peu abimées lors du démontage
Détail ou autre image
vitrine_archeo_parement_2.JPG
Plan
plan_vitrine_archo.jpg Ossature_Vitrine_Archo.jpg
PDF Voir la fiche

ID03 : 1 banc et 1 podium - vitrine archéologique

ID03 : 1 banc et 1 podium - vitrine archéologique

vitrine_archeo_banc.JPG
Catégorie Mobilier
Matériaux
  • Bois
Précisions matière, finitions MDF 19 mm M3 peint
Description ID03 A (Petit banc en bois peint) Dimensions : Hauteur 45 cm x Longueur 90cm x Largeur 49,5 cm
ID03 B (Petit podium en bois peint avec une pente de 10%) Dimensions : Hauteur 75cm x Longueur 90cm x Largeur 49,5cm
Quantité 2
Les éléments peuvent être demandés à l'unité ? oui, possible de demander à l'unité
Longueur en cm 90
Largeur en cm 49.5
Etat Bon
Détail ou autre image
vitrine_archeo_podium.JPG
Plan
Plan_podium_et_banc.jpg
PDF Voir la fiche

ID03 : Blocs noirs

ID03 : Blocs noirs

Blocsnoirs.JPG
Catégorie Socle
Matériaux
  • Bois
Précisions matière, finitions MDF peint
Description Socles en medium peint en noir avec une plinthe noire (même forme que les blocs marrons)
Bloc noir A : longueur = 70 cm, largeur = 50 cm, hauteur = 90 cm
Bloc noir B : longueur = 120 cm, largeur = 80 cm, hauteur = 46 cm
Bloc noir C : longueur = 138.5 cm, largeur = 60 cm, hauteur = 75 cm
Bloc noir D : longueur = 90 cm, largeur = 50 cm, hauteur = 61 cm
Quantité 4
Les éléments peuvent être demandés à l'unité ? oui, possible de demander à l'unité
Hauteur en cm 90
Longueur en cm 70
Largeur en cm 50
BlocsnoirsA.JPG BlocsnoirsB.JPG BlocsnoirsC.JPG
Etat Bon
PDF Voir la fiche

ID03 : Ossature Estrade néolithique

ID03 : Ossature Estrade néolithique

EstradeNeolithique.JPG
Catégorie Plaque de bois
Matériaux
  • Bois
Précisions matière, finitions Aggloméré 19 mm
Description L'estrade est constituée de panneaux en aggloméré de 19 mm d'épaisseur de longueurs et de largeurs variées. Deux à trois palettes (120 x 80 cm) devraient former ce lot.

On peut distinguer 2 types d'éléments :
  • des plaques de 60 à 50 cm de large et de 150 à 60 cm de long (qté environ 46).
  • des bandeaux de 12 cm de large et de 300 à 100 cm de long (qté environ 52).
Quantité 3
Les éléments peuvent être demandés à l'unité ? non, un seul lot
Hauteur en cm 40
Longueur en cm 120
Largeur en cm 80
Plaques_estradeneolithique01.png Plaques_estradeneolithique02.png Plaques_estradeneolithique03.png
Etat Bon
Détail état Trous de vis
PDF Voir la fiche

ID04 : Caissons cartels

ID04 : Caissons cartels

Caissonscartels_palettes.jpg
Catégorie Mobilier
Matériaux
  • Bois
Précisions matière, finitions MDF peint
Description Caissons en medium identiques à ceux de l'exposition "Afrique" pour la présentation des cartels. Les cartels sont imprimés sur des plaques translucides qui sont elles-mêmes rétro-éclairées. L'éclairage et les cartels ne sont pas fournis. Les dimensions sont variables.
Quantité 10
Les éléments peuvent être demandés à l'unité ? non, un seul lot
Caissonscartels_detail.JPG
Etat Bon
PDF Voir la fiche

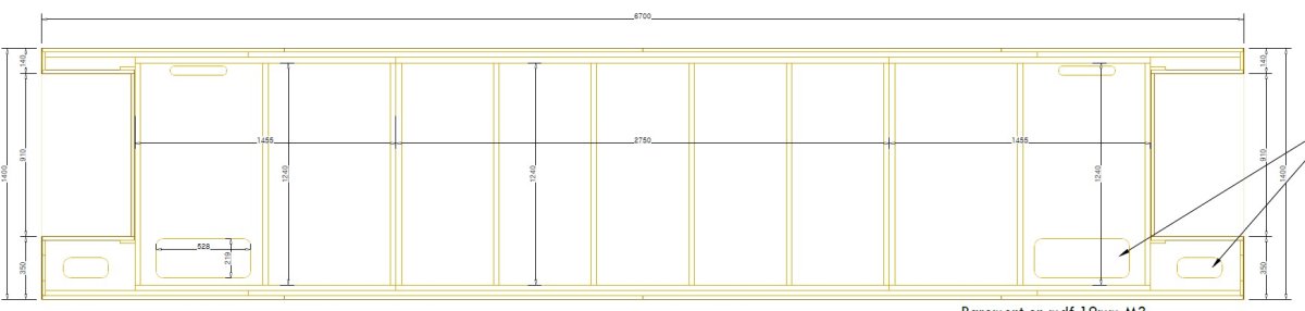
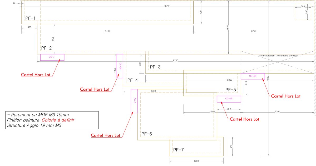
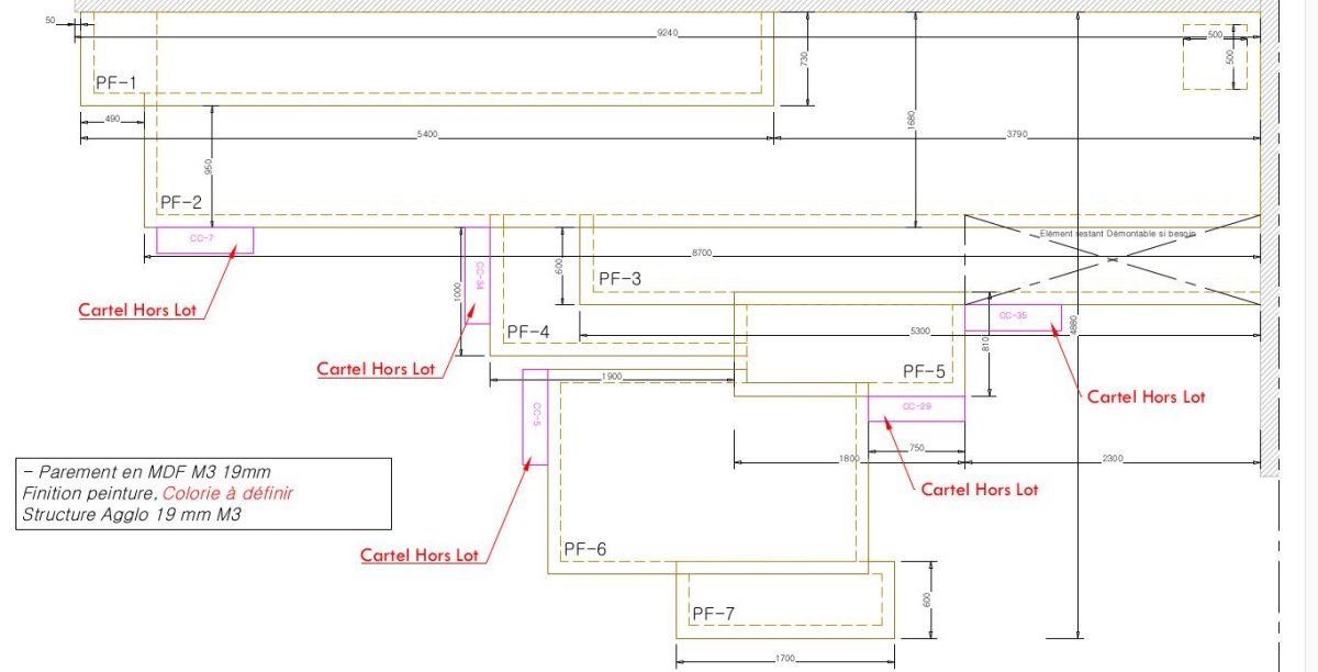
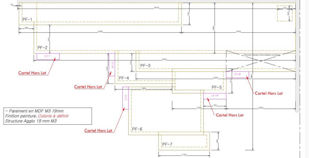
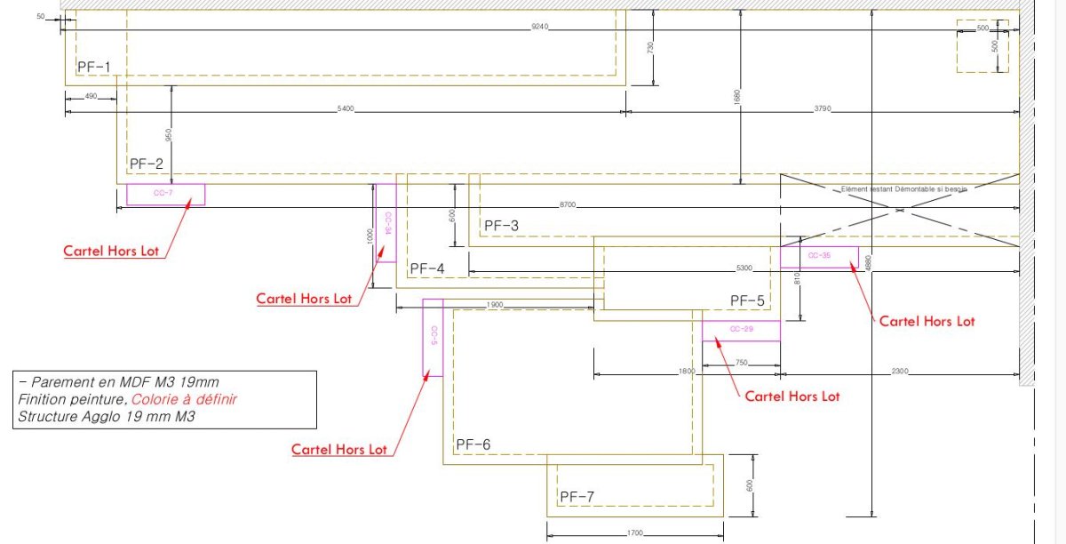
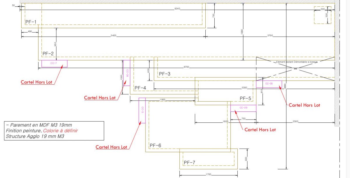
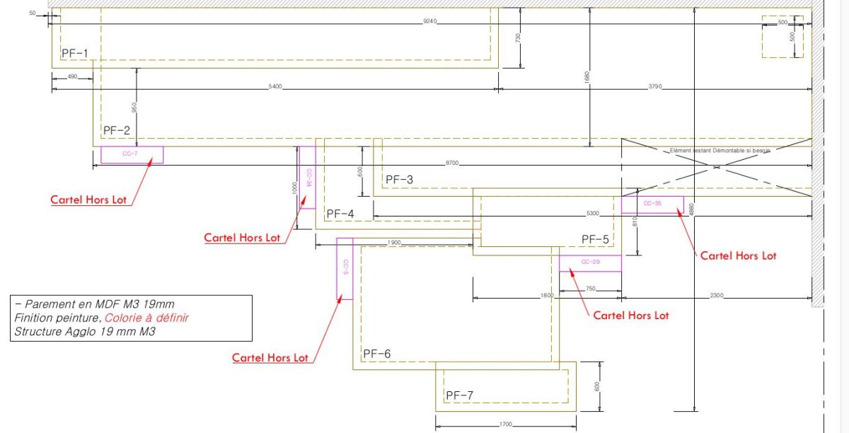
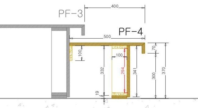
ID04 : Podium PF1 Fleuve

ID04 : Podium PF1 Fleuve

PF1_2.JPG
Catégorie Podium / Estrade
Matériaux
  • Bois
Précisions matière, finitions MDF 19 mm M3 peint
Description Podium d'exposition en MDF de 19 mm d'épaisseur. Le plateau est plus grand que la base.
Quantité 1
Les éléments peuvent être demandés à l'unité ? non, un seul lot
Hauteur en cm 13
Longueur en cm 540
Largeur en cm 73
Etat Bon
Détail ou autre image
Plan_podium1.jpg
Plan
plan_general.jpg
PDF Voir la fiche

ID04 : Stèles bleues

ID04 : Stèles bleues

Stele_bleu_A.JPG
Catégorie Signalétique
Matériaux
  • Bois
Précisions matière, finitions MDF peint
Description Bloc en medium, peint en bleu, creux, qui s'encastre sur une petite plaque de bois vissée sur un mobilier. L'arrière du bloc se détache grâce à des Clamex pour faciliter la fixation. Ces stèles peuvent être réutilisées pour présenter des documents ou recevoir du texte. Les textes ne seront pas enlevés au démontage.
Quantité 6
Les éléments peuvent être demandés à l'unité ? non, un seul lot
Hauteur en cm 80
Longueur en cm 50
Largeur en cm 10
Stele_bleu_A.JPG Stele_bleu_B.JPG Stele_bleu_C.JPG Stele_bleu_D.JPG Stele_bleu_E_microbio.JPG Stele_bleu_F.JPG
Etat Bon
PDF Voir la fiche

ID05 : Blocs videoprojection

ID05 : Blocs videoprojection

Blocsprojection.JPG
Catégorie Socle
Matériaux
  • Bois
Précisions matière, finitions MDF peint
Description Medium peint en vert sur 4 faces et en blanc sur 1 face (support de vidéoprojection).
Quantité 2
Les éléments peuvent être demandés à l'unité ? non, un seul lot
Hauteur en cm 61
Longueur en cm 112
Largeur en cm 85
Etat Bon
PDF Voir la fiche

ID05 : Podium Apollon

ID05 : Podium Apollon

Podium_Apollon.JPG
Catégorie Podium / Estrade
Matériaux
  • Bois
Précisions matière, finitions Aggloméré 19 mm
Description Podium en camembert avec une ossature en aggloméré de 19 mm d'épaisseur et un parement en aggloméré stratifié décor chêne de 19 mm d'épaisseur. Les joues à gauche et à droite ne sont pas intégrées mais il est possible de fournir 2 plaques décor chêne à redécouper pour fermer latéralement le podium. Une précision : la hauteur varie entre 20 cm sur la face et 80 cm sur l'arrière.
Quantité 1
Les éléments peuvent être demandés à l'unité ? non, un seul lot
Hauteur en cm 80
Longueur en cm 280
Largeur en cm 250
Podium_Apollon_detail01.JPG Podium_Apollon_detail02.JPG Podium_Apollon_plan2D.JPG Podium_Apollon_plan3D.JPG
Etat Bon
PDF Voir la fiche

ID05 : Podium PF2 Fleuve

ID05 : Podium PF2 Fleuve

PF2_4.JPG
Catégorie Podium / Estrade
Matériaux
  • Bois
Précisions matière, finitions MDF 19 mm M3 peint
Description Podium d'exposition en MDF de 19 mm d'épaisseur peint.
Quantité 1
Les éléments peuvent être demandés à l'unité ? non, un seul lot
Hauteur en cm 60
Longueur en cm 870
Largeur en cm 168
Etat Bon
Détail ou autre image
Podium_Fleuve_PF2.JPG
Plan
Podium_Fleuve_plan.JPG
PDF Voir la fiche

ID06 : Estrades

ID06 : Estrades

Estrades.JPG
Catégorie Podium / Estrade
Matériaux
  • Bois
Précisions matière, finitions MDF peint
Description Estrades en medium peint en noir. Les mises à distance métalliques ne sont pas incluses.
Estrade A (taureau) : Longueur = 200 cm, largeur = 190 cm, hauteur = 60 cm
Estrade B (portraits) : Longueur = 320 cm, largeur = 126 cm, hauteur = 40 cm
Estrade C (D2) : Longueur = 280 cm, largeur = 210 cm, hauteur = 60 cm
Estrade D (tambour) : Longueur = 275 cm, largeur = 155 cm, hauteur = 40 cm
Estrade E (portes) : Longueur = 300 cm, largeur = 120.5 cm, hauteur = 40 cm
Estrade F (D9) : Longueur = 239 cm, largeur = 133 cm, hauteur = 40 cm environ
Estrade G (masques) : Longueur = 152 cm, largeur = 133 cm, hauteur = 20 cm
Estrade H (emblême) : Longueur = 200 cm, largeur = 190 cm, hauteur = 60 cm
Estrade I (poteaux de véranda) : Longueur = 220 cm, largeur = 210 cm, hauteur = 60 cm
Estrade J (de l'Afrique à l'Europe) : Longueur = 177.5 cm, largeur = 120 cm, hauteur = 40 cm
Estrade K (corne) : Longueur = 280 cm, largeur = 130 cm, hauteur = 60 cm
Quantité 11
Les éléments peuvent être demandés à l'unité ? oui, possible de demander à l'unité
Hauteur en cm 60
Longueur en cm 200
Largeur en cm 190
EstradesA.JPG EstradesB.JPG EstradesC.JPG EstradesD.JPG EstradesE.JPG EstradesF.JPG EstradesG.JPG EstradesH.JPG EstradesI.JPG EstradesJ.JPG
Etat Bon
PDF Voir la fiche

ID06 : Paillasse Sur les traces

ID06 : Paillasse Sur les traces

Paillasse_surlestraces.JPG
Catégorie Mobilier
Matériaux
  • Bois
Précisions matière, finitions Aggloméré 19 mm
Description Grand mobilier avec une ossature en aggloméré de 19 mm d'épaisseur, un plateau en stratifié décor chêne et un piètement en mélaminé blanc. Les cloches, la stèle bleue et le porte-texte ne sont pas inclus. Uniquement le mobilier. L'ensemble peut être démonté. C'est un élément scénographique exceptionnel pour occuper une salle d'exposition.
Quantité 1
Les éléments peuvent être demandés à l'unité ? non, un seul lot
Hauteur en cm 80
Longueur en cm 430
Largeur en cm 280
Paillasse_surlestraces_detail01.JPG Paillasse_surlestraces_detail02.JPG Paillasse_surlestraces_detail03.JPG Paillasse_surlestraces_detail04.JPG Paillasse_surlestraces_plan.JPG Paillasse_surlestraces_plan3D.JPG
Etat Bon
PDF Voir la fiche

ID06: Podium PF3 Fleuve

ID06: Podium PF3 Fleuve

PF3.JPG
Catégorie Podium / Estrade
Matériaux
  • Bois
Précisions matière, finitions MDF 19 mm M3 peint
Description Podium d'exposition en MDF 19 mm d'épaisseur peint dans la salle 12 du musée.
Quantité 1
Les éléments peuvent être demandés à l'unité ? non, un seul lot
Hauteur en cm 49
Longueur en cm 530
Largeur en cm 70
Etat Bon
Détail ou autre image
Podium_Fleuve_PF3.JPG
Plan
Podium_Fleuve_plan.JPG
PDF Voir la fiche

ID07 : Podium PF4 Fleuve

ID07 : Podium PF4 Fleuve

PF4.JPG
Catégorie Podium / Estrade
Matériaux
  • Bois
Précisions matière, finitions MDF 19 mm M3 peint
Description Podium d'exposition en MDF de 19 mm d'épaisseur dans la salle 12 du musée.
Quantité 1
Les éléments peuvent être demandés à l'unité ? non, un seul lot
Hauteur en cm 37
Longueur en cm 190
Largeur en cm 50
Etat Bon
Détail ou autre image
Podium_Fleuve_PF4.JPG
Plan
Podium_Fleuve_plan.JPG
PDF Voir la fiche

ID07 : Stèles chêne

ID07 : Stèles chêne

Stele_chene_AB.JPG
Catégorie Signalétique
Matériaux
  • Bois
Précisions matière, finitions Aggloméré 19 mm stratifié décor chêne
Description Bloc en aggloméré stratifié décor chêne, creux, qui s'encastre sur une petite plaque de bois vissée sur un mobilier. L'arrière du bloc se détache grâce à des Clamex pour faciliter la fixation. Ces stèles peuvent être réutilisées pour présenter des documents ou recevoir du texte.

Stèle chêne A : hauteur = 110 cm, largeur = 100 cm, profondeur = 10 cm
Stèle chêne B : hauteur = 110 cm, largeur = 105 cm, profondeur = 10 cm
Stèle chêne C : hauteur = 94 cm, largeur = 100 cm, profondeur = 10 cm
Stèle chêne D : hauteur = 90 cm, largeur = 95 cm, profondeur = 10 cm
Stèle chêne E : hauteur = 125 cm, largeur = 155 cm, profondeur = 10 cm
Stèle chêne F : hauteur = 130 cm, largeur = 90 cm, profondeur = 10 cm
Stèle chêne G : hauteur = 130 cm, largeur = 90 cm, profondeur = 10 cm
Stèle chêne H : hauteur = 90 cm, largeur = 70 cm, profondeur = 10 cm
Quantité 8
Les éléments peuvent être demandés à l'unité ? oui, possible de demander à l'unité
Hauteur en cm 110
Longueur en cm 100
Largeur en cm 10
Stele_chene_AB.JPG Stele_chene_CD.JPG Stele_chene_E.JPG Stele_chene_F.JPG Stele_chene_G.JPG Stele_chene_H.JPG
Etat Bon
PDF Voir la fiche

ID07 : Vitrines noires

ID07 : Vitrines noires

Vitrinesnoires.JPG
Catégorie Vitrine objets
Matériaux
  • Bois
  • Verre
Précisions matière, finitions MDF, verre feuilleté 44.2
Description Grande vitrine d'objets :
  • Finition : peinture noire satinée
  • Plaque de verre securit en façade
  • Ouvertures latérales de la vitrine avec des charnières invisibles et une clé carré
  • Façade démontable sur aimants
  • L'éclairage à l'intérieur de la vitrine et le support cartel (mobilier incliné de couleur marron) ne sont pas inclus.

Vitrine noire A (Textile) : Longueur = 250 cm, largeur = 60 cm, hauteur = 280 cm
Plaque de verre A : L 190 x H 150 cm environ
Vitrine noire B (Figures humaines) : Longueur = 280 cm, largeur = 75 cm, hauteur = 280 cm
Plaque de verre B : L 220 x H 97 cm environ
Vitrine noire C (Représentations féminines) : Longueur = 280 cm, largeur = 75 cm, hauteur = 280 cm
Plaque de verre C : L 220 x H 97 cm environ
Vitrine noire D (Valeureux guerriers) : Longueur = 200 cm, largeur = 60 cm, hauteur = 280 cm
Plaque de verre D : L 150 x H 150 cm environ
Vitrine noire E (Marqueurs de prestige) : Longueur = 250 cm, largeur = 75 cm, hauteur = 280 cm
Plaque de verre E : L 200 x H 150 cm environ
Quantité 5
Les éléments peuvent être demandés à l'unité ? oui, possible de demander à l'unité
Hauteur en cm 280
Longueur en cm 250
Largeur en cm 60
Vitrinesnoires_detail.JPG Plan_vitrinenoire_ISO.jpg VitrinesnoiresA.JPG VitrinesnoiresB.JPG VitrinesnoiresBC.JPG VitrinesnoiresC.JPG VitrinesnoiresDE.JPG VitrinesnoiresD.JPG VitrinesnoiresE.JPG
Etat Bon
Détail état Le mobilier incliné de couleur marron est fixé sur la vitrine (risque de traces de vis sur la face en partie basse)
PDF Voir la fiche

ID08 : Grande vitrine bleue

ID08 : Grande vitrine bleue

Grandevitrine.JPG
Catégorie Vitrine objets
Matériaux
  • Bois
  • Verre
Précisions matière, finitions MDF valchromat marron, verre feuilleté
Description Grande vitrine d'objets :
  • Finition : MDF valchromat marron extérieur / Bleu intérieur
  • Accès aux objets par l'intérieur de la vitrine
  • Porte d'accès clé carrée
  • Caissons bois pour les objets
  • Ossature en bois
  • Joues en bois de chaque côté (largeur totale de 160 cm)
  • 7 vitrines avec verres feuilletées (33x33, 100x57, 90x53, 100x115, 28x40, 32x52, 37x47 cm)
  • Le mobilier incliné pour les cartels n'est pas inclus.
Quantité 1
Les éléments peuvent être demandés à l'unité ? non, un seul lot
Hauteur en cm 280
Longueur en cm 660
Largeur en cm 68
Plan_grandevitrine_ISO.jpg Plan_grandevitrine_dessus.jpg Grandevitrine_detail01.JPG Grandevitrine_detail02.JPG
Etat Bon
Détail état Risque de trous de vis en partie basse pour la fixation du mobilier incliné des cartels
PDF Voir la fiche

ID08 : Paillasse Peste noire A

ID08 : Paillasse Peste noire A

Paillasse_peste_A.JPG
Catégorie Mobilier
Matériaux
  • Bois
Précisions matière, finitions Aggloméré 19 mm stratifié
Description Grand mobilier qui va être démonté en 3 paillasses (Peste noire A, B et C). Le plateau est en aggloméré stratifié décor chêne, l'ossature en aggloméré et le piètement en mélaminé blanc. Les stèles décor chêne ne sont pas incluses (voir ID07 Stèles chêne A et B ). Au démontage, nous allons scier les éléments pour créer des paillasses autonomes. Le mobilier n'a pas de joues à gauche et à droite. Il est possible de fournir 2 plaques décor chêne à rédecouper pour fermer la paillasse.
Quantité 1
Les éléments peuvent être demandés à l'unité ? non, un seul lot
Hauteur en cm 80
Longueur en cm 230
Largeur en cm 120
Paillasse_pestenoire.JPG Paillasse_pestenoire_plan2D.png Paillasse_pestenoire_plan2D2.png
Etat Bon
Détail état Traces de scie à la découpe
PDF Voir la fiche

ID08 : Paillasse Peste noire B

ID08 : Paillasse Peste noire B

Paillasse_peste_B.JPG
Catégorie Mobilier
Matériaux
  • Bois
Précisions matière, finitions Aggloméré 19 mm stratifié
Description Grand mobilier qui va être démonté en 3 paillasses (Peste noire A, B et C). Le plateau est en aggloméré stratifié décor chêne, l'ossature en aggloméré et le piètement en mélaminé blanc. Les stèles décor chêne ne sont pas incluses (voir ID07 Stèles chêne A et B ). Au démontage, nous allons scier les éléments pour créer des paillasses autonomes. Le mobilier n'a pas de joues à gauche et à droite. Il est possible de fournir 2 plaques décor chêne à rédecouper pour fermer la paillasse.
Quantité 1
Les éléments peuvent être demandés à l'unité ? non, un seul lot
Hauteur en cm 80
Longueur en cm 211
Largeur en cm 120
Paillasse_pestenoire_plan2D.png Paillasse_pestenoire_plan2D2.png Paillasse_peste_B_detail.JPG Paillasse_pestenoire.JPG
Etat Bon
Détail état Traces de scie à la découpe
PDF Voir la fiche

ID08 : Paillasse Peste noire C

ID08 : Paillasse Peste noire C

Paillasse_pestenoire_C.JPG
Catégorie Mobilier
Matériaux
  • Bois
Précisions matière, finitions Aggloméré 19 mm stratifié
Description Grand mobilier qui va être démonté en 3 paillasses (Peste noire A, B et C). Le plateau est en aggloméré stratifié décor chêne, l'ossature en aggloméré et le piètement en mélaminé blanc. Les cloches ne sont pas comprises. Le panneau à l'arrière de L 280 x H 210 cm est posé sur la table avec des renforts. Au démontage, nous allons scier les éléments pour créer des paillasses autonomes. Le mobilier n'a pas de joues à gauche. Il est possible de fournir ou non le retour en quart de cercle à droite.
Quantité 1
Les éléments peuvent être demandés à l'unité ? non, un seul lot
Hauteur en cm 80
Longueur en cm 305
Largeur en cm 120
Paillasse_pestenoire_C_detail.JPG Paillasse_pestenoire_C_detail02.JPG Paillasse_pestenoire_C_plan.png Paillasse_pestenoire.JPG Paillasse_pestenoire_plan2D.png Paillasse_pestenoire_plan2D2.png
Etat Bon
Détail état Traces de scie à la découpe
PDF Voir la fiche

ID08 : Podium PF5 Fleuve

ID08 : Podium PF5 Fleuve

PF5.jpg
Catégorie Podium / Estrade
Matériaux
  • Bois
Précisions matière, finitions MDF 19 mm M3 peint
Description Podium d'exposition en MDF de 19 mm d'épaisseur dans la salle 12 du musée.
Quantité 1
Les éléments peuvent être demandés à l'unité ? non, un seul lot
Hauteur en cm 87
Longueur en cm 180
Largeur en cm 81
Etat Bon
Détail ou autre image
Podium_Fleuve_PF5.JPG
Plan
Podium_Fleuve_plan.JPG
PDF Voir la fiche

ID09 : Plaques de verre

ID09 : Plaques de verre

Grandevitrineblanche.JPG
Catégorie Plaque de verre
Matériaux
  • Verre
Précisions matière, finitions Verre
Description Dimensions indicatives des plaques de verre (épaisseur 6 mm)
  • 33 x 33 cm
  • 28 x 46 cm
  • 28 x 72 cm
  • 38 x 42 cm
  • 38 x 70 cm
  • 43 x 83 cm
  • 33 x 63 cm
  • 57 x 75 cm
  • 28 x 42 cm
  • 27 x 47 cm
  • 42 x 62 cm
  • 27 x 47 cm
  • 30 x 70 cm
Quantité 1
Les éléments peuvent être demandés à l'unité ? non, un seul lot
Épaisseur en mm 6
Plan_grandevitrineTAP_ISO.jpg
Etat Bon
PDF Voir la fiche

ID09 : Plateaux chêne

ID09 : Plateaux chêne

Plateau_chene_variole.JPG
Catégorie Plaque de bois
Matériaux
  • Bois
Précisions matière, finitions Aggloméré 19 mm stratifié décor chêne
Description Plateaux de 10 cm d'épaisseur en aggloméré avec un stratifié décor chêne qui peuvent être réutilisés avec un autre piètement. Tous les éléments posés sur le plateau ne sont pas inclus.

Plateau chêne A : longueur = 240 cm, largeur = 100 cm, hauteur = 10 cm
Plateau chêne B : longueur = 150 cm, largeur = 115 cm, hauteur = 10 cm
Plateau chêne C : longueur = 150 cm, largeur = 115 cm, hauteur = 10 cm
Plateau chêne D : longueur = 240 cm, largeur = 100 cm, hauteur = 10 cm
Plateau chêne E : longueur = 150 cm, largeur = 115 cm, hauteur = 10 cm
Plateau chêne F : longueur = 150 cm, largeur = 115 cm, hauteur = 10 cm
Quantité 6
Les éléments peuvent être demandés à l'unité ? oui, possible de demander à l'unité
Hauteur en cm 10
Longueur en cm 500
Largeur en cm 240
Plateau_chene_variole_plan.JPG Plateau_chene_variole_plan2D.JPG
Etat Bon
Détail état Traces en surface des socles et vitrines
PDF Voir la fiche

ID09 : Podium PF6 Fleuve

ID09 : Podium PF6 Fleuve

PF6_3.JPG
Catégorie Podium / Estrade
Matériaux
  • Bois
Précisions matière, finitions MDF 19 mm M3 peint
Description Podium d'exposition en MDF de 19 mm d'épaisseur dans la salle 12 du musée.
Quantité 1
Les éléments peuvent être demandés à l'unité ? non, un seul lot
Hauteur en cm 66
Longueur en cm 250
Largeur en cm 160
Etat Bon
Détail ou autre image
Podium_Fleuve_PF6.JPG
Plan
Podium_Fleuve_plan.JPG
PDF Voir la fiche

ID10 : Mise à distance

ID10 : Mise à distance

Mise_a_distance_gen.JPG
Catégorie Podium / Estrade
Matériaux
  • Bois
Précisions matière, finitions MDF peint
Description Socle en medium peint en blanc pour créer une mise à distance avec deux joues qui remontent sur la cloison. Le socle est en 2 parties de 150 cm chacune.
Quantité 1
Les éléments peuvent être demandés à l'unité ? non, un seul lot
Hauteur en cm 30
Longueur en cm 300
Largeur en cm 88
Mise_a_distance.JPG Mise_a_distance_plan.JPG
Etat Bon
PDF Voir la fiche

ID10 : Podium PF7 Fleuve

ID10 : Podium PF7 Fleuve

PF7.JPG
Catégorie Podium / Estrade
Matériaux
  • Bois
Précisions matière, finitions MDF 19 mm M3 peint
Description Podium d'exposition en MDF de 19 mm d'épaisseur dans la salle 12 du musée.
Quantité 1
Les éléments peuvent être demandés à l'unité ? non, un seul lot
Hauteur en cm 65
Longueur en cm 170
Largeur en cm 60
Etat Bon
Détail ou autre image
Podium_Fleuve_PF7.JPG
Plan
Podium_Fleuve_plan.JPG
PDF Voir la fiche

ID10 : Tôles ondulées

ID10 : Tôles ondulées

Corridors.JPG
Catégorie Aménagement divers
Matériaux
  • Métal
Précisions matière, finitions Acier peint
Description Ensemble de plaques de tôles ondulées recouvrant 2 corridors :
  • 166 x 56 cm (qté 3)
  • 305 x 270 cm
  • 165 x 270 cm
  • 160 x 270 cm
  • Les dimensions sont indicatives.
Finition : peinture gris mat
Quantité 1
Les éléments peuvent être demandés à l'unité ? non, un seul lot
Corridors_detail.JPG
Etat Bon
Détail état Perçage des vis
PDF Voir la fiche

ID11 : Cloisons C

ID11 : Cloisons C

CloisonsCLA.JPG
Catégorie Cloison
Matériaux
  • Bois
Précisions matière, finitions MDF, aggloméré
Description Cloison en bois avec un parement noir, une ossature en aggloméré et une ouverture :
  • Cloison C A : Longueur 330 cm, hauteur 280 cm, profondeur 60 cm
  • Cloison C B : Longueur 280 cm, hauteur 350 cm, profondeur 50 cm
Quantité 2
Les éléments peuvent être demandés à l'unité ? oui, possible de demander à l'unité
Hauteur en cm 280
Longueur en cm 330
Largeur en cm 60
CloisonsCLB.JPG CloisonsCLB_recto.JPG CloisonsCLB_plan.jpg
Etat Bon
PDF Voir la fiche

ID11 : Double écran

ID11 : Double écran

Ecrandouble.JPG
Catégorie Dispositif audiovisuel
Matériaux
  • Bois
Précisions matière, finitions Aggloméré 19 mm
Description Dispositif audiovisuel prêt à l'emploi. Ecran de vidéoprojection autoportant en angle. Peut être démonté en 2 parties. Elément scénographique rare.
Quantité 1
Les éléments peuvent être demandés à l'unité ? non, un seul lot
Hauteur en cm 344
Longueur en cm 286
Largeur en cm 61
Ecrandouble_plan2D.JPG Ecrandouble_plan3D1.JPG
Etat Bon
Détail état Joint vertical à refaire
PDF Voir la fiche

ID11 : Vitrine SPB1

ID11 : Vitrine SPB1

Vitrine.jpg
Catégorie Vitrine objets
Matériaux
  • Bois
  • Textile
Précisions matière, finitions Hêtre et MDF + Tulle villepinte
Description Vitrine d'exposition avec des montants en hêtre massif de 70x30 mm, un fond en MDF de 19 mm d'épaisseur et un bas de vitrine en MDF de 300 mm d'épaisseur. L'arrière est recouvert d'un bardage en Douglas avec des lames de 125 x 26 mm. Le tulle risque d'être enlevé pour retirer les objets de la vitrine et nous avons pris la décision de le mettre à part. C'est une très belle vitrine.

ID11 A : Tulle
ID11 B : Vitrine

Tulle villepinte sur la vitrine d'exposition en plusieurs parties peut être donné avec la vitrine (peut être abimé lors du démontage)
Quantité 1
Les éléments peuvent être demandés à l'unité ? oui, possible de demander à l'unité
Hauteur en cm 280
Longueur en cm 256.2
Largeur en cm 151.2
Etat Bon
Détail ou autre image
Vitrine_SPB1_plan_dessus.JPG
Plan
Vitrine_SPB1_plan_face.JPG
PDF Voir la fiche

ID12 : Cloisons bois

ID12 : Cloisons bois

Cloisonsbois.JPG
Catégorie Cloison
Matériaux
  • Bois
Précisions matière, finitions MDF, aggloméré
Description Cloisons d'exposition avec un parement en medium et une ossature en aggloméré derrière les vitrines :
  • Cloison bois A (vitrine bleue) : Longueur 400 cm, hauteur 280 cm, largeur 50 cm
  • Cloison bois B (vitrine jaune) : Longueur 600 cm, hauteur 280 cm, largeur 23 cm (contre-cloison, uniquement un recto)
  • Cloison bois C (vitrine rouge) : Longueur 300 cm environ, hauteur 280 cm, largeur 50 cm
  • ATTENTION : Sont disponibles sur les images uniquement les cloisons à l'arrière des vitrines. Ces dernières sont conservées par le musée.
Quantité 3
Les éléments peuvent être demandés à l'unité ? oui, possible de demander à l'unité
Hauteur en cm 280
Largeur en cm 50
CloisonsboisA.JPG CloisonsboisB.JPG CloisonsboisC.JPG
Etat Bon
Détail état Risque de trous des vis de fixation
PDF Voir la fiche

ID12 : Cloisons Losange

ID12 : Cloisons Losange

DSC08874.JPG
Catégorie Cloison
Matériaux
  • Bois
Précisions matière, finitions MDF et aggloméré
Description Aménagement divisé au démontage en 2 parties pour servir de cloisons. La cloison sera sans doute redécoupée au cours du démontage pour la rendre fonctionnelle et parallépipédique.

ID12 A : Dimensions Hauteur 400 cm x Longueur 253 cm x Epaisseur 13,2 cm
ID12 B : Dimensions Hauteur 400 cm x Longueur 249,4 cm x Epaisseur 13,2 cm
Quantité 2
Les éléments peuvent être demandés à l'unité ? oui, possible de demander à l'unité
Hauteur en cm 400
Longueur en cm 253
Largeur en cm 13.2
Etat Moyen
Détail état Présence de trous de vis
Détail ou autre image
detail_cloison_losange.JPG
Plan
Cloison_Losange_ossature.JPG Losange_Vue_dessus.jpg
PDF Voir la fiche

ID12 : Stèles blanches

ID12 : Stèles blanches

Stele_blanche.JPG
Catégorie Signalétique
Matériaux
  • Bois
Précisions matière, finitions Aggloméré mélaminé 19 mm
Description Bloc creux en aggloméré mélaminé blanc, qui s'encastre sur un mobilier. L'arrière du bloc se détache grâce à des Clamex pour faciliter la fixation. Ces stèles peuvent être réutilisées pour présenter des documents ou recevoir du texte.

Stèle blanche A : hauteur = 100 cm, largeur = 275 cm, profondeur = 10 cm
Stèle blanche B : hauteur = 100 cm, largeur = 130 cm, profondeur = 10 cm
Stèle blanche C : hauteur = 100 cm, largeur = 150 cm, profondeur = 10 cm
Stèle blanche D : hauteur = 130 cm, largeur = 115 cm, profondeur = 10 cm
Stèle blanche E : hauteur = 90 cm, largeur = 80 cm, profondeur = 10 cm
Stèle blanche F : hauteur = 45 cm, largeur = 25 cm, profondeur = 10 cm
Stèle blanche G : hauteur = 45 cm, largeur = 25 cm, profondeur = 10 cm
Stèle blanche H : hauteur = 115 cm, largeur = 220 cm, profondeur = 10 cm
Quantité 8
Les éléments peuvent être demandés à l'unité ? oui, possible de demander à l'unité
Hauteur en cm 100
Longueur en cm 130
Largeur en cm 10
Stele_blanche_A.JPG Stele_blanche_B.JPG Stele_blanche_C.JPG Stele_blanche_D.JPG Stele_blanche_E.JPG Stele_blanche_F.JPG Stele_blanche_G.JPG Stele_blanche_H.JPG
Etat Bon
PDF Voir la fiche

ID13 : Cloisons vidéo

ID13 : Cloisons vidéo

Cloisons_video.JPG
Catégorie Dispositif audiovisuel
Matériaux
  • Bois
Précisions matière, finitions MDF, aggloméré
Description Cloisons d'exposition intégrant un emplacement pour un écran :
  • CV1 : Hauteur 280 cm, largeur 160 cm, profondeur 50 cm
  • CV2 : Hauteur 280 cm, largeur 100 cm, profondeur 50 cm
  • CV3 : Hauteur 350 cm, largeur 260 cm, profondeur 50 cm
  • CV4 : Hauteur 280 cm, largeur 160 cm, profondeur 25 cm
  • Les écrans et casques d'écoute ne sont pas fournis.
Quantité 4
Les éléments peuvent être demandés à l'unité ? oui, possible de demander à l'unité
Hauteur en cm 280
Largeur en cm 50
Plan_video_CV1.jpg Plan_video_CV2.jpg Plan_video_CV3.jpg Plan_video_CV4.jpg
Etat Bon
PDF Voir la fiche

ID13 : Plateaux Choléra

ID13 : Plateaux Choléra

Plateau_cholera.JPG
Catégorie Mobilier
Matériaux
  • Bois
Précisions matière, finitions Aggloméré mélaminé 19 mm
Description Les paillasses de la partie "Choléra" vont être démontées pour constituer 2 lots :
  • Lot plateaux mélaminé blanc (ID13) avec décor carreaux blancs
  • Lot échelles aggloméré stratifié décor chêne (ID14)

L'objectif est de permettre de moduler ces 2 éléments pour créer ses propres mobiliers.

Plateau Choléra A : longueur = 110 cm, largeur = 90 cm, hauteur = 10 cm, qté 1
Plateau Choléra B : longueur = 208 cm, largeur = 90 cm, hauteur = 10 cm, qté 1
Plateau Choléra C : longueur = 208 cm, largeur = 90 cm, hauteur = 10 cm, qté 1
Plateau Choléra D : longueur = 250 cm, largeur = 90 cm, hauteur = 10 cm, qté 1
Plateau Choléra E : longueur = 250 cm, largeur = 90 cm, hauteur = 10 cm, qté 1
Plateau Choléra F : longueur = 250 cm, largeur = 90 cm, hauteur = 10 cm, qté 1
Quantité 6
Les éléments peuvent être demandés à l'unité ? oui, possible de demander à l'unité
Hauteur en cm 10
Longueur en cm 208
Largeur en cm 90
Plateau_cholera.png paillasse_labo_carreaux.JPG
Etat Bon
Détail état Traces en surface des socles et vitrines
PDF Voir la fiche

ID14 : Caisses de transport

ID14 : Caisses de transport

Caisses_transport.JPG
Catégorie Caisses de transport
Matériaux
  • Bois
Précisions matière, finitions Sapin (tasseaux et contreplaqué)
Description Caisses de transport d'oeuvres d'art en bois avec patins de 10 cm de haut, des renforts latéraux en tasseaux de sapin et un parement en contreplaqué sapin ainsi que des poignées en bois. Les dimensions sont les côtes extérieures en tenant compte des patins de 10 cm de haut. Il n'a pas été possible de vérifier si les caisses sont conditionnées à l'intérieur avec de la mousse PE.

Ces caisses peuvent être utilisées pour du transport mais aussi pour un aménagement scénographique de type exposition itinérante. Les caisses vidéo et les caisses vitrines peuvent compléter l'ensemble.

Dimensions extérieures indicatives :

  • Caisse de transport A : Longueur 43 cm, largeur 40 cm, hauteur 90 cm
  • Caisse de transport B : Longueur 111 cm, largeur 66 cm, hauteur 83 cm
  • Caisse de transport D (qté 2) : Longueur 135 cm, largeur 133 cm, hauteur 151 cm
  • Caisse de transport E : Longueur 123 cm, largeur 102 cm, hauteur 48 cm
  • Caisse de transport H : Longueur 133 cm, largeur 133 cm, hauteur 101 cm
  • Caisse de transport J : Longueur 93 cm, largeur 113 cm, hauteur 103 cm
  • Caisse de transport K : Longueur 86 cm, largeur 86 cm, hauteur 150 cm
  • Caisse de transport L : Longueur 230 cm, largeur 23 cm, hauteur 77 cm
  • Caisse de transport N : Longueur 92 cm, largeur 75 cm, hauteur 73 cm
  • Caisse de transport O : Longueur 144 cm, largeur 50 cm, hauteur 123 cm
  • Caisse de transport P : Longueur 182 cm, largeur 22 cm, hauteur 147 cm
  • Caisse de transport R : Longueur 87 cm, largeur 39 cm, hauteur 80 cm
Quantité 12
Les éléments peuvent être demandés à l'unité ? oui, possible de demander à l'unité
Caisses_transportA.JPG Caisses_transportBC.JPG Caisses_transportD.JPG Caisses_transportE.JPG Caisses_transportH.JPG Caisses_transportJ.JPG Caisses_transportK.JPG Caisses_transportL.JPG Caisses_transportN.JPG Caisses_transportO.JPG Caisses_transportP.JPG Caisses_transportR.JPG
Etat Bon
PDF Voir la fiche

ID14 : Echelles Choléra

ID14 : Echelles Choléra

Plateau_cholera.JPG
Catégorie Mobilier
Matériaux
  • Bois
Précisions matière, finitions Aggloméré 19 mm stratifié
Description Les paillasses de la partie "Choléra" vont être démontées pour constituer 2 lots :

  • Lot plateaux mélaminé blanc (ID13)
  • Lot échelles aggloméré stratifié décor chêne (ID14)

L'objectif est de permettre de moduler ces 2 éléments pour créer ses propres mobiliers.

Les échelles de face sont constituées d'un châssis en aggloméré 19 mm d'épaisseur avec un panneau aggloméré stratifié décor chêne posé en clef américaine. Les échelles à l'arrière sont fabriquées uniquement avec un châssis en aggloméré.

Echelle Choléra A (Face) : longueur = 143 cm, hauteur = 78 cm, épaisseur = 12 cm
Echelle Choléra B (Face) : longueur = 191 cm, hauteur = 78 cm, épaisseur = 12 cm
Echelle Choléra C (Face) : longueur = 148 cm, hauteur = 78 cm, épaisseur = 12 cm
Echelle Choléra D (Arrière) : longueur = 189 cm, hauteur = 78 cm, épaisseur = 10 cm
Echelle Choléra E (Face) : longueur = 250 cm, hauteur = 78 cm, épaisseur = 12 cm
Echelle Choléra F (Arrière) : longueur = 153 cm, hauteur = 78 cm, épaisseur = 10 cm
Echelle Choléra G (Face) : longueur = 190 cm, hauteur = 78 cm, épaisseur = 12 cm
Echelle Choléra H (Arrière) : longueur = 238 cm, hauteur = 78 cm, épaisseur = 10 cm
Echelle Choléra I (Face) : longueur = 250 cm, hauteur = 78 cm, épaisseur = 12 cm
Echelle Choléra J (Arrière) : longueur = 250 cm, hauteur = 78 cm, épaisseur = 10 cm
Echelle Choléra K (Face) : longueur = 256 cm, hauteur = 78 cm, épaisseur = 12 cm
Echelle Choléra L (Arrière) : longueur = 250 cm, hauteur = 78 cm, épaisseur = 10 cm
Echelle Choléra M (Arrière) : longueur = 250 cm, hauteur = 78 cm, épaisseur = 10 cm
Echelle Choléra N (Face) : longueur = 256 cm, hauteur = 78 cm, épaisseur = 12 cm
Quantité 14
Les éléments peuvent être demandés à l'unité ? oui, possible de demander à l'unité
Hauteur en cm 78
Longueur en cm 250
Largeur en cm 12
Echelle_cholera_face.png Echelle_cholera_arriere.png Echelle_cholera_plan.png
Etat Bon
Détail état Trous de vis
PDF Voir la fiche

ID15 : Caisses de transport vidéo

ID15 : Caisses de transport vidéo

Caisses_transportM.JPG
Catégorie Dispositif audiovisuel
Matériaux
  • Bois
Précisions matière, finitions Sapin (tasseaux et contreplaqué)
Description Caisse de transport transformée en dispositif audiovisuel. Le matériel audiovisuel (écran et habillage tôle noire) n'est pas inclus. La caisse s'ouvre sur un petit côté et des racks sont aménagés dans la caisse.

Dimensions indicatives :

  • Caisse video M : Longueur 87 cm, largeur 67 cm, hauteur 76 cm
  • Caisse video Q : Longueur 136 cm, largeur 21 cm, hauteur 188 cm
Quantité 2
Les éléments peuvent être demandés à l'unité ? non, un seul lot
Caisses_transportM.JPG Caisses_transportQ.JPG
Etat Bon
PDF Voir la fiche

ID15 : Podium Choléra

ID15 : Podium Choléra

Podium_cholera.JPG
Catégorie Podium / Estrade
Matériaux
  • Bois
Précisions matière, finitions Aggloméré 19 mm
Description Grand podium à 2 niveaux avec des plateaux en mélaminé blanc (décor carreaux blancs) et un piètement en aggloméré stratifié décor chêne. L'ossature est en aggloméré de 19 mm d'épaisseur. L'ensemble est assez cohérent et nous avons préféré conserver ce mobilier pour le proposer complet. Il est démontable et offre une grande surface de présentation.
Quantité 1
Les éléments peuvent être demandés à l'unité ? non, un seul lot
Hauteur en cm 80
Longueur en cm 664
Largeur en cm 214
Podium_cholera_detail01.JPG Podium_cholera_detail02.JPG Podium_cholera_plan2D.png Podium_cholera_plan3D.png
Etat Bon
PDF Voir la fiche

ID16 : Caisses de transport vitrines

ID16 : Caisses de transport vitrines

Caisses_transportI.JPG
Catégorie Vitrine objets
Matériaux
  • Bois
  • Verre
Précisions matière, finitions Sapin (tasseaux et contreplaqué), verre feuilleté
Description Caisses de transport détournées pour devenir des vitrines d'exposition. L'éclairage n'est pas inclus.

Dimensions indicatives :
  • Caisse vitrine C (statuette féminine) : Longueur 41 cm, largeur 47 cm, hauteur 45 cm
  • Caisse vitrine F (statuette féminine) : Longueur 93 cm, largeur 50 cm, hauteur 82 cm
  • Caisse vitrine G (couple de statuettes) : Longueur 73 cm, largeur 72 cm, hauteur 98 cm
  • Caisse vitrine I (masque facial) : Longueur 93 cm, largeur 93 cm, hauteur 100 cm
Les plaques de verre sont fournies.
Quantité 4
Les éléments peuvent être demandés à l'unité ? non, un seul lot
Caisses_transportBC.JPG Caisses_transportF.JPG Caisses_transportG.JPG Caisses_transportI.JPG
Etat Bon
PDF Voir la fiche

ID16 : Paillasse Microscopes

ID16 : Paillasse Microscopes

Paillasse_labo_microscopes.JPG
Catégorie Mobilier
Matériaux
  • Bois
Précisions matière, finitions Aggloméré 19 mm stratifié
Description Mobilier avec un plateau en aggloméré mélaminé blanc (carreaux blancs), une ossature en aggloméré de 19 mm d'épaisseur et un piètement en aggloméré stratifié décor chêne. Le plateau est légèrement décentré mais il peut être déplacé. Les dispositifs et la stèle audiovisuelle ne sont pas inclus. La cractéristique de ce mobilier est l'arrondi et le retrait plus important du piètement.
Quantité 1
Les éléments peuvent être demandés à l'unité ? non, un seul lot
Hauteur en cm 80
Longueur en cm 350
Largeur en cm 120
Paillasse_labo_microscopes_plan.JPG Paillasse_labo_microscopes_plan3D.JPG paillasse_labo_carreaux.JPG
Etat Bon
PDF Voir la fiche

ID17 : Ecrans de projection

ID17 : Ecrans de projection

Ecran.JPG
Catégorie Dispositif audiovisuel
Matériaux
  • Métal
  • Plastique
Précisions matière, finitions Acier peint, toile de projection, habillage noir en MDF
Description Ecrans de projection à suspendre avec lestage au sol
Quantité 2
Les éléments peuvent être demandés à l'unité ? non, un seul lot
Hauteur en cm 260
Longueur en cm 350
Largeur en cm 50
EcranA.JPG EcranB.JPG Ecran_detail01.JPG Ecran_detail02.JPG
Etat Bon
PDF Voir la fiche

ID17 : Paillasse Laboratoires A

ID17 : Paillasse Laboratoires A

Paillasse_labo_A.JPG
Catégorie Mobilier
Matériaux
  • Bois
Précisions matière, finitions Aggloméré mélaminé 19 mm
Description Grand mobilier qui va être démonté en 3 paillasses (Laboratoires A, B et C). Le plateau est en aggloméré mélaminé blanc avec le défonçage d'un motif carreau blanc. L'ossature est toujours en aggloméré et le piètement en aggloméré avec un stratifié décor chêne. Au démontage, nous allons scier les éléments pour créer des paillasses autonomes. Le mobilier n'a donc pas de joues à gauche et à droite. Il est possible de fournir 2 plaques décor chêne à rédecouper pour fermer la paillasse. La stèle blanche soutient le mobilier par l'arrière (dimensions : H 190 x L 220 x P 10 cm). Le porte-texte et le verre ne sont pas inclus. Une vitrine est intégrée dans le plateau.
Quantité 1
Les éléments peuvent être demandés à l'unité ? non, un seul lot
Hauteur en cm 90
Longueur en cm 318
Largeur en cm 105
Paillasse_labo_A_detail01.JPG Paillasse_labo_A_detail02.JPG
Etat Bon
Détail état Traces de scie à la découpe
PDF Voir la fiche

ID17 : Paillasse Laboratoires B

ID17 : Paillasse Laboratoires B

Paillasse_labo_B.JPG
Catégorie Mobilier
Matériaux
  • Bois
Précisions matière, finitions Aggloméré mélaminé 19 mm
Description Grand mobilier qui va être démonté en 3 paillasses (Laboratoires A, B et C). Le plateau est en aggloméré mélaminé blanc avec le défonçage d'un motif carreau blanc. L'ossature est toujours en aggloméré et le piètement en aggloméré avec un stratifié décor chêne. Au démontage, nous allons scier les éléments pour créer des paillasses autonomes. Le mobilier n'a pas de joues à droite. Il est possible de fournir 1 plaque décor chêne à rédecouper pour fermer la paillasse. La stèle blanche est incluse (dimensions : H 100 x L 240 x P 10 cm). Le porte-texte et les vitrines ne sont pas inclus.
Quantité 1
Les éléments peuvent être demandés à l'unité ? non, un seul lot
Hauteur en cm 90
Longueur en cm 430
Largeur en cm 120
Paillasse_labo_B_detail01.JPG Paillasse_labo_B_detail02.JPG
Etat Bon
PDF Voir la fiche

ID17 : Paillasse Laboratoires C

ID17 : Paillasse Laboratoires C

Paillasse_labo_C.JPG
Catégorie Mobilier
Matériaux
  • Bois
Description Grand mobilier sans la cloison. Le plateau est en aggloméré mélaminé blanc avec le défonçage d'un motif carreau blanc. L'ossature est toujours en aggloméré et le piètement en aggloméré avec un stratifié décor chêne. Les 3 stèles (ID12 E,F et G) ne sont pas fournies ainsi que le porte-texte et les vitrines. La paillasse se termine par un quart de cercle.
Quantité 1
Les éléments peuvent être demandés à l'unité ? non, un seul lot
Hauteur en cm 90
Longueur en cm 540
Largeur en cm 90
Paillasse_labo_C_detail01.JPG Paillasse_labo_C_detail02.JPG Paillasse_labo_C_plan.JPG
Etat Bon
PDF Voir la fiche

ID18 : Plaques MDF

ID18 : Plaques MDF

Grandevitrineblanche.JPG
Catégorie Plaque de bois
Matériaux
  • Bois
Précisions matière, finitions MDF peint (parement), aggloméré brut (ossatures des cloisons)
Description Lors du démontage de la grande vitrine blanche et des cloisons, il sera possible de composer plusieurs lots de bois comprenant environ 20 panneaux de medium/aggloméré par palette double. Nous en saurons plus au moment du démontage mais vous pouvez vous positionner sur ces lots dès aujourd'hui. Je vous informerai du nombre de panneaux disponibles sur le chantier.
Quantité 3
Les éléments peuvent être demandés à l'unité ? oui, possible de demander à l'unité
Hauteur en cm 40
Longueur en cm 240
Largeur en cm 80
Etat Moyen
Détail état Trous des vis, traces de colle, traces d'adhésif
PDF Voir la fiche

ID18 : Podium Laboratoires

ID18 : Podium Laboratoires

Podium_labo.JPG
Catégorie Podium / Estrade
Matériaux
  • Bois
Précisions matière, finitions Aggloméré 19 mm stratifié
Description Podium avec une ossature en aggloméré de 12 cm de haut et un habillage en aggloméré stratifié décor chêne de 40 cm de haut. Le podium peut être démonté en plusieurs parties. Le plateau est en mélaminé blanc. Le podium est complet.
Quantité 1
Les éléments peuvent être demandés à l'unité ? non, un seul lot
Hauteur en cm 40
Longueur en cm 405
Largeur en cm 278
Podium_laboratoires_plan2D.png Podium_laboratoires_plan3D.png
Etat Bon
PDF Voir la fiche

ID19 : Dispositif audiovisuel VIH

ID19 : Dispositif audiovisuel VIH

Dispositif_audio_VIH.JPG
Catégorie Dispositif audiovisuel
Matériaux
  • Bois
Précisions matière, finitions Aggloméré mélaminé 19 mm
Description Stèle en aggloméré mélaminé blanc pour intégrer 2 écrans. Trappe d'accès au moyen de clamex. Les 2 écrans ne sont pas fournis.
Quantité 1
Les éléments peuvent être demandés à l'unité ? non, un seul lot
Hauteur en cm 70
Longueur en cm 125
Largeur en cm 10
Dispositif_audio_VIH_3D.JPG
Etat Bon
PDF Voir la fiche

ID19 : Table d'exposition

ID19 : Table d'exposition

Table.JPG
Catégorie Vitrine objets
Matériaux
  • Bois
Précisions matière, finitions MDF valchromat marron
Description Table de l'exposition "Terre en héritage". La cloche en plexiglas et la maquette ne sont pas fournies.
Quantité 1
Les éléments peuvent être demandés à l'unité ? non, un seul lot
Hauteur en cm 77
Longueur en cm 150
Largeur en cm 150
Épaisseur en mm 19
Etat Bon
PDF Voir la fiche

ID20 : Dispositif circulaire

ID20 : Dispositif circulaire

dispositifcirculaire.jpg
Catégorie Aménagement divers
Matériaux
  • Bois
Précisions matière, finitions Bois laqué noir
Description Dispositif circulaire composé de 4 quartiers en bois laqué noir rassemblés en son centre par un anneau métallique et des tiges filetées. Le dispositif est posé au sol au centre du disque et légèrement en surélévation sur les bords extérieurs. Un deuxième disque est disponible pour être placé sur le dessus du premier et arrondir la partie supérieure du dispositif. Ce second disque n'est pas indispensable.

Disque inférieur avec tiges filetées en 4 parties : diamètre de 260 cm (quartier de 130 cm).
Disque supérieur posé en 4 parties : diamètre de 250 cm (quartier de 125 cm).

Cet élément scénographique demande à être réinterprété pour un nouvel usage.

Les vidéoprojecteurs sur l'image ne sont pas fournis. Les palettes sur les images sont incluses pour faciliter le transport et le stockage.
Quantité 1
Les éléments peuvent être demandés à l'unité ? non, un seul lot
Hauteur en cm 14
Longueur en cm 260
Largeur en cm 260
Modulecirculaire.JPG Modulecirculaire_detail.JPG Modulecirculaire02.JPG
Etat Bon
PDF Voir la fiche

ID20 : Lot mélaminé blanc VIH

ID20 : Lot mélaminé blanc VIH

melamine_blanc_VIH.JPG
Catégorie Plaque de bois
Matériaux
  • Bois
Précisions matière, finitions Aggloméré mélaminé 19 mm
Description Lot de plaques en aggloméré mélaminé blanc issues du mobilier de la partie "VIH" de longueurs variables mais toujours en 70 cm de large. Des clefs américaines sont fixées au dos. En fonction de leur système de fixation (sauf collage), nous essayerons de les enlever.

Dimensions en cm : Longueur 210 / L. 215 / L. 135 / L. 68 / L. 230 / L. 155 / L. 51 / L. 118 / L. 185 / L. 150
Quantité 10
Les éléments peuvent être demandés à l'unité ? non, un seul lot
Largeur en cm 70
Épaisseur en mm 19
Etat Bon
PDF Voir la fiche

ID21 : Lot mélaminé blanc Variole

ID21 : Lot mélaminé blanc Variole

Melamine_blanc_variole.JPG
Catégorie Plaque de bois
Matériaux
  • Bois
Précisions matière, finitions Aggloméré mélaminé 19 mm
Description Lot de plaques en aggloméré mélaminé blanc issues du mobilier de la partie "Variole" de longueurs variables mais toujours en 70 cm de large. Des clefs américaines sont fixées au dos. En fonction de leur système de fixation (sauf collage), nous essayerons de les enlever.

Dimensions en cm : Longueur 215 / L. 215 / L. 215 / L. 150 / L. 215 / L. 68 / L. 180 / L. 180
Quantité 8
Les éléments peuvent être demandés à l'unité ? non, un seul lot
Hauteur en cm 70
Épaisseur en mm 19
Etat Bon
PDF Voir la fiche

ID21 : Montants MDF en U

ID21 : Montants MDF en U

MontantsU.JPG
Catégorie Châssis
Matériaux
  • Bois
Précisions matière, finitions MDF
Description Montants et traverses en medium de 19 mm d'épaisseur ayant servi pour les cloisons d'une exposition (épaisseur 32 mm). Des panneaux en bois étaient insérés dans ces éléments pour composer des cloisons.

  • Une trentaine de montants de 350 cm de long
  • 8 montants de 193 cm de long
  • 10 montants de 218 cm de long
Quantité 50
Les éléments peuvent être demandés à l'unité ? non, un seul lot
Hauteur en cm 69
Longueur en cm 350
Largeur en cm 60
Épaisseur en mm 19
MontantsU_detail01.JPG MontantsU_detail02.JPG
Etat Moyen
Détail état Fragilités d'assemblage
PDF Voir la fiche

ID22 : Estrade Sioux

ID22 : Estrade Sioux

Estrade_couloir.JPG
Catégorie Podium / Estrade
Matériaux
  • Bois
Précisions matière, finitions MDF, aggloméré
Description Estrade d'une vitrine de l'exposition "Sioux" avec un parement en medium peint en noir et une ossature en aggloméré.
Quantité 1
Les éléments peuvent être demandés à l'unité ? non, un seul lot
Hauteur en cm 16
Longueur en cm 356
Largeur en cm 133
Etat Moyen
PDF Voir la fiche

ID22 : Lot mélaminé blanc Antiquité

ID22 : Lot mélaminé blanc Antiquité

Melamine_blanc_antiquite.JPG
Catégorie Plaque de bois
Matériaux
  • Bois
Précisions matière, finitions Aggloméré mélaminé 19 mm
Description Lot de plaques en aggloméré mélaminé blanc issues du mobilier de la partie "VIH" de longueurs variables mais toujours en 70 cm de large. Des clefs américaines sont fixées au dos. En fonction de leur système de fixation (sauf collage), nous essayerons de les enlever.

Dimensions en cm : Longueur 100 / L. 100 / L. 155 / L. 76 / L. 101 / L. 101 / L. 146 / L. 141 / L. 151 / L. 141
Quantité 10
Les éléments peuvent être demandés à l'unité ? non, un seul lot
Hauteur en cm 70
Épaisseur en mm 19
Melamine_blanc_antiquite_detail01.JPG
Etat Bon
PDF Voir la fiche

ID23 : Châssis métallique

ID23 : Châssis métallique

Chassis_metallique.JPG
Catégorie Châssis
Matériaux
  • Métal
Précisions matière, finitions Acier laqué noir
Description Plafonnier de l'estrade de l'exposition "Sioux" (ID 22) qui soutenait les plaques de verre de la vitrine. Des cornières de 30 x 20 mm font le tour du châssis.
Quantité 1
Les éléments peuvent être demandés à l'unité ? non, un seul lot
Longueur en cm 350
Largeur en cm 130
Épaisseur en mm 20
Chassis_metallique_detail.JPG
Etat Bon
PDF Voir la fiche

ID23 : Plaques MDF blanc Instituts

ID23 : Plaques MDF blanc Instituts

MDF_cloison_instituts.JPG
Catégorie Plaque de bois
Matériaux
  • Bois
Précisions matière, finitions MDF peint
Description Lot de plaques en medium peint en blanc issues de la cloison "Instituts et Laboratoires".
Quantité 2
Les éléments peuvent être demandés à l'unité ? non, un seul lot
Hauteur en cm 310
Longueur en cm 155
Épaisseur en mm 19
Etat Moyen
Détail état Trous de vis
PDF Voir la fiche

ID24 : Plaques incurvées en plexiglas

ID24 : Plaques incurvées en plexiglas

Plaquesplexi.JPG
Catégorie Plaque en plastique PMMA
Matériaux
  • Plastique
Précisions matière, finitions Plastique
Description 4 plaques de PMMA courbes pouvant former un cylindre. Le disque MDF noir (ID25) peut servir de support.
Quantité 4
Les éléments peuvent être demandés à l'unité ? non, un seul lot
Longueur en cm 164
Largeur en cm 132
Épaisseur en mm 6
Etat Bon
PDF Voir la fiche

ID24 : Plaques mélaminé Instituts

ID24 : Plaques mélaminé Instituts

Melamine_blanc_P3E.JPG
Catégorie Plaque de bois
Matériaux
  • Bois
Précisions matière, finitions Aggloméré mélaminé 19 mm
Description Lot de 2 grands panneaux en mélaminé blanc de la cloison "Instituts".
Quantité 2
Les éléments peuvent être demandés à l'unité ? non, un seul lot
Hauteur en cm 230
Largeur en cm 155
Épaisseur en mm 19
Etat Bon
PDF Voir la fiche

ID25 : Disque MDF

ID25 : Disque MDF

DisqueMDF.JPG
Catégorie Plaque de bois
Matériaux
  • Bois
Précisions matière, finitions MDF peint
Description Disque en medium, peint en noir, de 160 cm de diamètre.
Quantité 1
Les éléments peuvent être demandés à l'unité ? non, un seul lot
Hauteur en cm 0
Longueur en cm 160
Largeur en cm 160
Épaisseur en mm 40
Etat Bon
PDF Voir la fiche

ID25 : Plateaux VIH

ID25 : Plateaux VIH

Plateaux_VIH.JPG
Catégorie Mobilier
Matériaux
  • Bois
Précisions matière, finitions Aggloméré mélaminé 19 mm
Description Les paillasses de la partie "VIH" vont être démontées pour constituer 2 lots :

  • Lot plateaux mélaminé blanc (ID27)
  • Lot échelles aggloméré avec face en mélaminé blanc (ID28)


L'objectif est de permettre de moduler ces 2 éléments pour créer ses propres mobiliers.

Plateau VIH A : longueur = 120 cm, largeur = 50 cm
Plateau VIH B : longueur = 206 cm, largeur = 90 cm
Plateau VIH C : longueur = 204 cm, largeur = 90 cm
Plateau VIH D : longueur = 203 cm, largeur = 105 cm
Plateau VIH E : longueur = 219 cm, largeur = 105 cm
Plateau VIH F : longueur = 217 cm, largeur = 129 cm
Plateau VIH G : longueur = 217 cm, largeur = 129 cm
Quantité 8
Les éléments peuvent être demandés à l'unité ? non, un seul lot
Plateaux_VIH_plan3D.JPG
Etat Bon
PDF Voir la fiche

ID26 : Cloche en verre

ID26 : Cloche en verre

Cloche_verre.JPG
Catégorie Cloche en verre
Matériaux
  • Verre
Précisions matière, finitions Verre feuilleté
Description Cloche en verre de l'exposition "Fleuves" à l'origine pour la présentation d'une grande maquette. Les plaques de verre font 8 mm d'épaisseur. Attention au poids de la vitrine (environ 100 kg).
Quantité 1
Les éléments peuvent être demandés à l'unité ? non, un seul lot
Hauteur en cm 45
Longueur en cm 184
Largeur en cm 125
Épaisseur en mm 8
Etat Bon
PDF Voir la fiche

ID26 : Echelles VIH

ID26 : Echelles VIH

melamine_blanc_VIH.JPG
Catégorie Plaque de bois
Matériaux
  • Bois
Précisions matière, finitions Aggloméré 19 mm
Description Les paillasses de la partie "VIH" vont être démontées pour constituer 3 lots :

  • Lot plateaux mélaminé blanc (ID27)
  • Lot échelles aggloméré (ID28)
  • Lot piètement mélaminé blanc (ID20)

L'objectif est de permettre de moduler ces éléments pour créer ses propres mobiliers.

Echelle VIH A : longueur = 162 cm, hauteur = 78 cm, épaisseur = 10 cm
Echelle VIH B : longueur = 200 cm, hauteur = 78 cm, épaisseur = 10 cm
Echelle VIH C : longueur = 198 cm, hauteur = 78 cm, épaisseur = 10 cm
Echelle VIH D : longueur = 206 cm, hauteur = 78 cm, épaisseur = 10 cm
Echelle VIH E : longueur = 206 cm, hauteur = 78 cm, épaisseur = 10 cm
Echelle VIH F : longueur = 206 cm, hauteur = 78 cm, épaisseur = 10 cm
Echelle VIH G : longueur = 132 cm, hauteur = 78 cm, épaisseur = 10 cm
Echelle VIH H : longueur = 204 cm, hauteur = 78 cm, épaisseur = 10 cm
Echelle VIH I : longueur = 252 cm, hauteur = 78 cm, épaisseur = 10 cm
Echelle VIH J : longueur = 310 cm, hauteur = 78 cm, épaisseur = 10 cm
Echelle VIH K : longueur = 194 cm, hauteur = 78 cm, épaisseur = 10 cm
Echelle VIH L : longueur = 219 cm, hauteur = 78 cm, épaisseur = 10 cm
Echelle VIH M : longueur = 222 cm, hauteur = 78 cm, épaisseur = 10 cm
Echelle VIH N : longueur = 181 cm, hauteur = 78 cm, épaisseur = 10 cm
Echelle VIH O : longueur = 203 cm, hauteur = 78 cm, épaisseur = 10 cm
Echelle VIH P : longueur = 181 cm, hauteur = 78 cm, épaisseur = 10 cm
Echelle VIH Q : longueur = 152 cm, hauteur = 78 cm, épaisseur = 10 cm
Echelle VIH R : longueur = 75 cm, hauteur = 78 cm, épaisseur = 10 cm
Echelle VIH S : longueur = 115 cm, hauteur = 78 cm, épaisseur = 10 cm
Quantité 19
Les éléments peuvent être demandés à l'unité ? oui, possible de demander à l'unité
Hauteur en cm 78
Épaisseur en mm 100
Echelle_cholera_arriere.png
Etat Bon
Détail état Traces de vis
PDF Voir la fiche

ID27 : Cloison d'angle noire

ID27 : Cloison d'angle noire

Cloison_noire.JPG
Catégorie Cloison
Matériaux
  • Bois
Précisions matière, finitions MDF peint
Description Cloison avec une ossature en échelles et un parement en medium peint en noir. La cloison sera démontée et l'emplacement des vis sur les faces sera visible.
Quantité 1
Les éléments peuvent être demandés à l'unité ? non, un seul lot
Hauteur en cm 345
Longueur en cm 546
Largeur en cm 58
Cloison_noire_plan.JPG
Etat Moyen
Détail état Trous de vis sur les panneaux
PDF Voir la fiche

ID27 : Plaques plexiglas

ID27 : Plaques plexiglas

rack_plexi.jpg
Catégorie Plaque en plastique PMMA
Matériaux
  • Plastique
Précisions matière, finitions PMMA
Description Plaques en plastique PMMA, avec un châssis en medium, peint en noir.
Quantité 6
Les éléments peuvent être demandés à l'unité ? non, un seul lot
Longueur en cm 280
Largeur en cm 100
Épaisseur en mm 10
rack_plexi_detail.jpg
Etat Moyen
Détail état Rayures
PDF Voir la fiche

ID28 : Mobilier double

ID28 : Mobilier double

Mobilier_Japon.JPG
Catégorie Vitrine objets
Matériaux
  • Bois
Précisions matière, finitions MDF valchromat noir/marron
Description Vitrine d'exposition en 2 parties :
  • Une base de 229 cm de long x 70 cm de large x 85 cm de haut.
  • Une vitrine posée sur la base de 113 cm de long x 70 cm de large x 85 cm de haut.
La vitrine est ouverte sur une face côté public. La plaque de verre n'est pas fournie.
Quantité 1
Les éléments peuvent être demandés à l'unité ? non, un seul lot
Hauteur en cm 170
Longueur en cm 229
Largeur en cm 70
Mobilier_Japon_detail.JPG
Etat Bon
PDF Voir la fiche

ID28 : Planches en U en sapin 286

ID28 : Planches en U en sapin 286

Planches_en_U.JPG
Catégorie Plaque de bois
Matériaux
  • Bois
Précisions matière, finitions Sapin
Description Planches en sapin de 25 mm d'épaisseur assemblées en U pour imiter les poutres d'une mine (exposition "Minéraux"). Une face est brute et l'autre a été travaillée pour donner l'illusion d'une poutre en bois.
Quantité 18
Les éléments peuvent être demandés à l'unité ? non, un seul lot
Longueur en cm 286
Largeur en cm 19.5
Épaisseur en mm 25
Planches_en_U_detail01.JPG Planches_en_U_detail02.JPG
Etat Moyen
Détail état Face décor poutre
PDF Voir la fiche

ID29 : Palette blocs noirs

ID29 : Palette blocs noirs

Paletteblocsnoirs.JPG
Catégorie Aménagement divers
Matériaux
  • Bois
Précisions matière, finitions MDF peint
Description Une palette de mobilier scénographique peint en noir.
Quantité 1
Les éléments peuvent être demandés à l'unité ? non, un seul lot
Hauteur en cm 140
Longueur en cm 120
Largeur en cm 80
Etat Bon
PDF Voir la fiche

ID29 : Planches en U en sapin 260

ID29 : Planches en U en sapin 260

Planches_en_U.JPG
Catégorie Plaque de bois
Matériaux
  • Bois
Précisions matière, finitions Sapin
Description Planches en sapin de 25 mm d'épaisseur assemblées en U pour imiter les poutres d'une mine (exposition "Minéraux"). Une face est brute et l'autre a été travaillée pour donner l'illusion d'une poutre en bois.
Quantité 10
Les éléments peuvent être demandés à l'unité ? non, un seul lot
Longueur en cm 260
Largeur en cm 19.5
Épaisseur en mm 25
Planches_en_U_detail01.JPG Planches_en_U_detail02.JPG
Etat Moyen
Détail état Face décor poutre
PDF Voir la fiche

ID30 : Cimaise vidéo

ID30 : Cimaise vidéo

Cimaise_video_A.JPG
Catégorie Dispositif audiovisuel
Matériaux
  • Bois
Précisions matière, finitions MDF peint
Description Cloison rouge avec une ouverture horizontale qui peut faciliter l'intégration d'un dispositif audiovisuel ou lumineux (par exemple une carte interactive dans cette exposition). La cloison est autoportante (sauf la cimaise vidéo C en contre-cloison). Une pareclose en façade permet d'acccéder au dispositif. La plaque en plexiglas avec une carte imprimée n'est pour l'instant pas fournie. Le câblage électrique sera récupéré par le musée.

Cimaise vidéo A : hauteur = 250 cm, largeur = 184 cm, profondeur = 58 cm
Cimaise vidéo B : hauteur = 250 cm, largeur = 300 cm, profondeur = 50 cm
Cimaise vidéo C : hauteur = 250 cm, largeur = 300 cm, profondeur = 20 cm
Cimaise vidéo D : hauteur = 250 cm, largeur = 200 cm, profondeur = 50 cm
Cimaise vidéo E : hauteur = 250 cm, largeur = 300 cm, profondeur = 50 cm
Cimaise vidéo F : hauteur = 250 cm, largeur = 270 cm, profondeur = 30 cm
Quantité 5
Les éléments peuvent être demandés à l'unité ? oui, possible de demander à l'unité
Hauteur en cm 250
Longueur en cm 300
Largeur en cm 50
Cimaise_video_A.JPG Cimaise_video_B.JPG Cimaise_video_C.JPG Cimaise_video_D.JPG Cimaise_video_E.JPG Cimaise_video_C_plan.JPG Cimaise_video_D_plan.JPG
Etat Bon
Détail état Trous de vis sur les panneaux
PDF Voir la fiche

ID30 : Mobilier Develon

ID30 : Mobilier Develon

Develon.JPG
Catégorie Mobilier
Matériaux
  • Bois
Précisions matière, finitions MDF stratifié
Description Vitrine longue en medium sur palette. Les dimensions sont indicatives.
Quantité 1
Les éléments peuvent être demandés à l'unité ? non, un seul lot
Hauteur en cm 45
Longueur en cm 200
Largeur en cm 70
Etat Bon
PDF Voir la fiche

ID31 : Plaques mélaminé Soigner

ID31 : Plaques mélaminé Soigner

Melamine_blanc_soigner.JPG
Catégorie Plaque de bois
Matériaux
  • Bois
Précisions matière, finitions Aggloméré mélaminé 19 mm
Description Dos d'une paillasse démontée sous la forme d'une stèle en aggloméré mélaminé blanc.
Quantité 2
Les éléments peuvent être demandés à l'unité ? non, un seul lot
Hauteur en cm 180
Longueur en cm 122
Épaisseur en mm 19
Melamine_blanc_soigner_detail.JPG
Etat Bon
PDF Voir la fiche

Strate ecole de design lyon

Strate ecole de design lyon

TYPE DE STRUCTURE Ecole
SITE INTERNET https://www.strate.design/
NOM ET PRENOM DU CONTACT POUR LES ECHANGES (avant la livraison ou l'enlèvement) victor lafarge
LISTE DES ELEMENTS SOUHAITES
  • ID29 : Planches en U en sapin 260
Avez-vous une utilisation future prévue pour les éléments demandés ? Si oui laquelle ? Projet design en bois pour nos étudiants.
COMMENTAIRES C'était encore une très belle exposition.
PDF Voir la fiche

Trombinoscope CP La Rize

Trombinoscope CP La Rize

Description courte Trombinoscope de la classe de CP
Nom de la personne référente du wiki Hélène Causse
Accéder au site : https://reemploi.fixart.fr/classeCP
Je donne mon accord pour que ces données soient collectées oui
PDF Voir la fiche

Un beau logo pour Yeswiki

UnBeauLogoPourYeswiki_yeswiki-logo.png

Un beau logo pour Yeswiki

Résumé Il fallait le rafraichir, nous l'avons fait !
Billet Après multiples discussions, tests et essais, un logo plus actuel a été créé pour Yeswiki
Nous espérons que vous l'aimerez ;-)
PDF Voir la fiche

Un nouveau thème pour Yeswiki

Un nouveau thème pour Yeswiki

Résumé Margot, voilà le nom du nouveau thème qui sera distribué avec la prochaine version de Yeswiki
Billet Plus moderne, mieux pensé, plus graphiqu.
Margot permettra d'unifier les rendus graphiques des wikis.
PDF Voir la fiche

Yeswiki : le site officiel

Yeswiki : le site officiel

Site web https://yeswiki.net
Type de ressource
  • Site web ressource
Description Tout ce qu'il y a à savoir sur Yeswiki
PDF Voir la fiche

Yeswikiday

Yeswikiday

Description Une journée pour faire avancer le projet Yeswiki dans la bonne humeur
Début de l'événement 30.04.2020 - 07:00
Fin de l'événement 30.04.2020 - 14:00
Adresse url https://yeswiki.net/?DocumentatioN
YeswikidaY_yeswiki-logo.png
Code postal 7700
Ville Mouscron
PDF Voir la fiche

Youpi ici c'est le titre

Youpi ici c'est le titre

Description Un événement autour du vin, c'est pour cela qu'il est à Bordeaux...
Début de l'événement 08.01.2020
Fin de l'événement 10.01.2020
Ville Bordeaux
PDF Voir la fiche
CSV JSON Widget

(>^_^)> Galope sous YesWiki <(^_^<)